119-125 College Avenue (College Townhouses) Construction Update, 10/2019

10 11 2019

Probably the last update for this one. All that’s left is some landscaping, at least until the power lines are buried. Definitely one of the stranger projects I’ve covered. Practically no online presence apart from city documents and what I’ve written for the Voice and here. As far as I’m aware, these are just privately-owned Cornell faculty apartments.

“John Novarr and Phil Proujansky’s latest Collegetown development appears to be in the home stretch. The glass and steel facade is basically complete, the concrete entry stairs have been poured and cured, and railings, trim and other exterior finish work is ongoing. Interestingly, these appear to come pre-furnished. Peering inside the windows, unopened mattresses were laid out on new frames and tables and chairs had been stocked in the apartment units.

Part of the reason for that might be the intended market – during the approvals process, the project team stated that the 67 units of rental housing geared towards Cornell visiting faculty and researchers. Reasonably, many of those folks would arrive in Ithaca with little in the way of furniture, and given the relatively short appointments for visiting faculty and staff (a year typically, maybe two), it would make sense to offer units pre-furnished. It would also probably explain why these units aren’t advertised online. Welliver and their partners should have the apartments ready for their first tenants by the end of this year.”

A history of the project can be found here.





Cornell North Campus Residential Expansion Construction Update, 10/2019

31 10 2019

I’ve been intended to do a formal introduction piece for Cornell’s enormous North Campus Residential Expansion, but the sheer breadth of it makes it an arduous task – I’ve estimated the full write-up will push about 10-12 pages, and it’s one of the reasons why the blog has gone quiet. For now, here are monthly photo updates from the site. For now, background reading and history can be found by reading the Voice archive here and here.

The sophomore village (Site 1) will have four residential buildings with 800 new beds and associated program space totaling 299,900 SF, and a 1,200 seat, 66,300 SF dining facility.This is being built on what was the CC Parking Lot and the former Sigma Alpha Mu fraternity on Sisson Place, now Northcross Road. All buildings in the sophomore village are in the City of Ithaca. The bounds of the sophomore village extend into the village of Cayuga Heights, but only the landscaping.

The freshman village (Site 2) will have three new residential buildings (spanning the City and Town line), with a total of 401,200 SF and 1,200 new beds and associated program space. Site Plan Review Documents indicate about 223,400 SF is in the City, and 177,800 SF is in the Town. At both sites, the buildings will be between two and six stories using a modern aesthetic. The project has an estimated price tag of $175 million and will result in the disturbance of about 25.6 acres at the two sites. The 250-page Site Plan Review (SPR) application can be found here, with supplemental reports here.

As previously noted, Cornell has grown substantially while its housing options have not. The application provides further insight by saying that one of the goals isn’t just to have housing available to 100% of freshman and sophomores, it’s to mandate they live on campus – currently, there is no requirement to live on campus, though freshmen are strongly urged to do so. 800 beds will be sophomores, 1,200 beds for freshmen, and 75 beds for live-in faculty, RAs and support staff. The growth in campus housing from 8,400 beds to 10,400 will also allow Cornell to address long-deferred maintenance to older residential halls and increase its undergraduate enrollment by another 900 (the current undergraduate enrollment is 14,900).

Water will come to the new dorms via Fall Creek and the Cornell filtration plant, sewer sustems will connect to joint city/town/village facilities, and the loss of 396 parking spaces is mitigated in part by the observation that the CC’s Lot inconvenient location and expensive parking permits meant only about 110 spaces were regularly used, and a surplus of parking in other North Campus parking lots means users will be assigned spaces nearby, with enough spaces left over for the few hundred additional vehicles 2,000 on-campus students may bring.

The dorms will tie into Cornell’s centralized energy system, which is primarily fed by the Cornell’s Combined Heat and Power Plant (CHP), which is powered primarily by natural gas and reuses waste heat, as well as an increasing set of renewable energy resources, like solar arrays and the lake source cooling program. Since the CHP system relies on natural gas as its primary energy source, it became a major source of contention during review. Cornell has stressed that more renewable sources are in the pipeline and the plan is to have all their energy be renewable by 2035, but that far-flung timeline has not been welcome news to many local environmental advocates.

The project falls in three municipalities and in three zoning districts: the U-I zoning district in the City in which the proposed 5 stories and 55 feet are allowed; the Low Density Residential District (LDR) in the Town, which allows for the proposed two-story residence halls (with a special permit); and the Multiple Housing District within Cayuga Heights, but only for landscaped areas. Technically, any one of six governmental bodies could have been lead agency – the city, the village, the town, the NYS Dormitory Authority, the Tompkins County Department of Health, or the NYS Department of Environmental Conservation. However, for the sake of coordination, the others consented to allowing the city to be Lead Agency for the project with decision-making authority on the environmental review, while offering their concurring critiques and subordinate reviews.

The buildings are being designed by ikon.5 Architects, the general contractor is Welliver of Montour Falls, and TWMLA is handling the landscape architecture. T.G. Miller is the civil engineer for the project, and Thornton Tomasetti is doing the structural engineering. Taitem Engineering served as an energy consultant for the project, which is pursuing LEED Gold Certification. Canadian firm WSP Global Inc. is in charge of the design of fire protection and mechanical/electrical/plumbing systems, and Ricca Design Studios will handle the interior design and fitting out of the food service areas within the new dining hall. SRF & Associates of Rochester did the traffic study, and John P. Stopen Engineering of Syracuse did the geotechnical work. Intergrated Acquisition and Development (IAD) is the co-developer (non-owner) with Cornell.

Since receiving approval in late June 2019, the project has progressed at a quick pace, with the sophomore village underway just a few weeks later. As of this week, the excavation work and concrete footer pours are already underway. Wood forms are in place to hold the concrete in place as it cures, and rebar, for structural strength, is ready for the pour, capped with orange plastic toppers for safety reasons. Underground utilities installations and excavation work are ongoing at the freshman village site, which started a little later in the fall.

Plans are to have the sophomore village open by August 2021, and the freshman village by August 2022. A project of this size will require a sizable number of workers. The project team expects that 75-100 construction workers will be employed at any one time, 140 on average, and 280 at peak construction periods. The new dorms would create 85-110 jobs after opening, mostly in maintenance and program support roles.

August 4th:

Freshman village site:

Exterior wall mock-up:

September 6th / Sophomore Village Only

 

October 27th: Freshman village

Sophomore village:

 





238 Linden Avenue Construction Update, 5/2019

6 08 2019

It appears John Novarr and Phil Proujansky’s housing project on Collegetown’s Linden Avenue is practically complete, and this will be its last post on the blog. The fiber cement and zinc panels are in place, the landscaping is nearly complete, and the inside is furnished – someone’s kitchen gets a lofty direct view of the street below. Oddly enough, this project has virtually no online presence, not even to advertise rentals. Granted, Executive MBA students are a very niche market, but if it weren’t for the approvals process, it would be as if this project didn’t exist. Even then, there have been major design changes since approval.

In a Facebook post, general contractor Hayner Hoyt states the project still contains 24 studio housing units, but geared towards Cornell faculty and staff. I honestly don’t know who the target market is, it may have changed from MBA students to visiting faculty and staff like its counterpart the College Townhouse at 119-125 College Avenue.

The architect is ikon.5 of Princeton, with local firm Trowbridge Wolf Michaels Landscape Architecture serving as the project team representatives, and T.G. Miller P.C. providing the civil engineering work. Background information about the project can be found here.





News Tidbits 6/23/19

23 06 2019

1. The good news in Lansing is that there’s a future for the power plant, though not as a power plant. The former coal plant would be reconfigured into a data center powered by renewable energy. Data centers use a lot of energy and have heavy energy loads, so old power plants are surprisingly suitable choices. The center’s computing power would demand about 100 megawatts at full capacity, according to reports, roughly equivalent to the power demand of 75,000 homes. They also produce large amounts of heat, so having a cold water intake from the lake comes in handy for supplying cooling systems. 15 megawatts would be produced on site, and the rest from off-site solar arrays. According to the Cayuga Operating Company’s memo, the conversion would provide $100 million in capital investments, 30 to 40 full-time jobs in the $40-60,000 range, as well as about 100 construction jobs.

In an interesting twist, the other plant slated to become a data center, in the town of Somerset in Niagara County, was the “Plan B” plant built after years or local protests and stonewalling shelved plans for a nuclear power plant in the town of Lansing near the Cayuga plant. The discovery of an ancient fault line near the Somerset site led to the operating company switching out its nuclear plans for coal. Suffice it to say, this data center plans also nullifies the plan to convert the power plant to a natural gas-fired facility.

While it’s a lower number of permanent jobs than the power plant (which was around 70 staff in 2016), it does provide a viable future for the town of Lansing’s biggest taxpayer, and comes as something of a relief in that regard. The county supports the proposal but the town is tabling support at the moment at the insistence of its Democratic bloc, which wants to ask questions at an informational meeting Wednesday before offering a voice of support. The state is not likely to support the plan unless the town has voiced support, so the vote is a rather urgent matter. It’s a bit tricky due to public notice guidelines, but the town board will hold a special meeting right after the presentation to vote on whether or not to support the plan.

For the record, the informational meeting is open to the general public – Lansing Town Hall at 29 Auburn Road, 6 PM Wednesday 6/26.

2. The bad news in Lansing is that the Lansing Meadows senior housing is in limbo. Unsurprisingly, the requested change from 20 to 30 units was considered a major change to the Planned Development Area. Developer Eric Goetzmann’s argument is that the 20-unit proposal proved too costly to build, and is seeking 30 units on roughly similar footprints. No dice, the IDA and village planning board would have to reopen their process to approve the changes, and the project is legally bound to be completed by the end of next July; another few months of review would cause it to miss that deadline.

Then came the latest proposal. Twelve units (four triplexes), just as originally intended when first proposed nine years ago. But the plan is clearly designed to be filled out with more units, the U.S. Army Corps of Engineers permits that required years to obtain have been left to expire. This too, would be a major change to the PDA, which is 20 units in 10 duplexes. A minor change would be shifting garages or marginal adjustments to building footprints. This is not minor.

This project has been before the planning board 57 times over the years and nine iterations. The village and the IDA have been very accommodating, from the unusual retail-building abatement for BJ’s, to the commercial space on the eastern end of the parcel, and all the residential changes over the years. I will be the first to acknowledge that some of the communities, Lansing village included, can be bureaucratically burdensome. But it’s time to point out that this developer is acting in bad faith. The village and the IDA have tried to make this work, bending over backwards to accommodate Goetzmann. He did not hesitate to get BJ’s built, which he sold in 2015 for a healthy $16.8 million. But the housing and the wetlands protection have always been afterthoughts, boxes checked in an effort to get that BJ’s abatement. It’s time that the village and IDA put their feet down and demand he either start building, or start making plans to pay back his tax abatement. The years of dickering have gone on long enough.

The concern is that by pursuing a clawback, the housing may never happen. But honestly, nine years on, is there an expectation that it will ever get done?

 

3. Sticking with bad faith for the moment – the IAWWTF proposal creates some uncomfortable questions. The first proposal was everything within a 1200 foot radius of the plant. The new one is everything west of Route 13 within that 1200 foot radius.

That doesn’t logically make sense. the prevailing wind direction for the offensive odors that the disclosure ordinance seeks to inform buyers and renters about? It’s NW-SE, due to a combination of storm tracks and the local topography, the hills create a channeling effect. Most of the areas covered under the new bounds aren’t in the downstream path of the winds, and odors carried by those winds.

Why were the established neighborhoods to the southeast of the plant left out, even if they are in one of the more prone locations? Officially, “because they’re already aware of the risks”, according to the explanation provided by the councilor spearheading the ordinance proposal, West Hill’s Cynthia Brock. That explanation neglects the fact that over time, tenants move and homeowners sell. As proposed, the cutoff is an excuse because existing homeowners in Fall Creek and Northside would have likely seen their home values and rental prices take a hit from her mandatory disclosure document, which another councilor described as “terrifying”. It would quickly lead to a lawsuit and the perception that Common Council is actively undermining the home equity and financial well-being of working class Northsiders and politically active Creekers. No other councilor on the committee would likely support the proposal in those circumstances.

So what does the IAWWTF disclosure ordinance impact as currently proposed? The revised version targets the Carpenter Park property, City Harbor, the NYS DOT site the county wants to have developed, the Farmer’s Market and a few other waterfront and near-waterfront properties. In general, mixed-use developments or potential developments that councilor Brock has regularly spoken out against.

This is being carried out on the auspices of health and welfare concerns, but as designed, the IAWWTF disclosure ordinance doesn’t adequately protect health and welfare, and appears to explicitly target waterfront projects councilor Brock dislikes. How would this withstand  the inevitable lawsuit filed by either the City Harbor developers, the Carpenter Park development group, or the county?

Literally and figuratively, this doesn’t pass the smell test.

4. Here’s a look at the Planning and Development Board agenda for next Tuesday. Apart from a one-lot subdivision for a new home at 243 Cliff Street, everything else is a familiar item:

AGENDA ITEM
1. Agenda Review 6:00
2. Privilege of the Floor 6:05
3. Approval of Minutes: May 28, 2019 6:20
4. Subdivision Review


Project: Minor Subdivision and Construction of a Single Family Home 6:25

Location: 243 Cliff Street
Applicant: Laurel Hart & Dave Nutter
Actions: Declaration of Lead Agency, Public Hearing, Determination of Environmental Significance

Project Description: The applicant proposes to subdivide the .36 acre site into two parcels and build one single family home. The subdivision will result in Parcel A measuring .152 acres (6,638 SF) with 66 feet of frontage on Cliff Street and containing an existing single family home and garage, and Parcel B measuring .218 acres (9,484 SF) with 97 feet of frontage on Park Road. The property is in the R-3a Zoning District, which has the following minimum requirements: 5,000 SF lot size and 40 feet of street frontage for single-family homes, 10-foot front yard, and 10- and five foot side yards and a rear yard of 20% or 50 feet, but not less than 20 feet. Access to the proposed home on Parcel B will be via a new access drive connecting to Park Road. This has been determined to be a Type 1 Action under the City of Ithaca Environmental Quality Review Ordinance §176-4(B)(2), and the State Environmental Quality Review Act (“SEQRA”) §617.4(b)(11).

Project materials are available for download from the City website:
https://www.cityofithaca.org/DocumentCenter/Index/1028 (Site Plan Review)
https://www.cityofithaca.org/DocumentCenter/Index/1030 (Subdivision)

The property owners want to build a new home that will allow them to age in place; their current century-old home isn’t adaptable for the wheelchair accessibility they seek, but they want to stay in their neighborhood, so the plan is to work with local homebuilder Carina Construction to build a new modular unit (2 floors + partially built-out basement, 26’x28′ footprint) on a subdivided piece of their land. It’s a multistory home, but the upstairs can be converted into a unit for a live-in caretaker, and all their living needs can be handled on one floor. The home will be solar-powered. The new home, downslope from the existing house, will be accessed from Park Road.

5. Site Plan Review

A. Project: North Campus Residential Expansion (NCRE) 6:45
Location: Cornell University Campus
Applicant: Trowbridge Wolf Michaels for Cornell University
Actions: Consideration of Final Site Plan Approval

Project Description: The applicant proposes to construct two residential complexes (one for sophomores and the other for freshmen) on two sites on North Campus. The sophomore site will have four residential buildings with 800 new beds and associated program space totaling 299,900 SF and a 1,200-seat, 66,300 SF dining facility. The sophomore site is mainly in the City of Ithaca with a small portion in the Village of Cayuga Heights; however, all buildings are in the City. The freshman site will have three new residential buildings (each spanning the City and Town line) with a total of 401,200 SF and 1,200 new beds and associated program space – 223,400 of which is in the City, and 177,800 of which is in the Town. The buildings will be between two and six stories using a modern aesthetic. The project is in three zoning districts: the U-I zoning district in the City in which the proposed five stories and 55 feet are allowed; the Low Density Residential District (LDR) in the Town which allows for the proposed two-story residence halls (with a special permit); and the Multiple Housing District within Cayuga Heights in which no buildings are proposed. This has been determined to be a Type I Action under the City of Ithaca Environmental Quality Review Ordinance (“CEQRO”) §176-4 B.(1)(b), (h) 4, (i) and (n) and the State Environmental Quality Review Act (“SEQRA”) § 617.4 (b)(5)(iii) for which the Lead Agency issued a Negative Declaration on December 18, 2018 and granted Preliminary Site Plan Approval to the project on March 26, 2019.

Project materials are available for download from the City website: http://www.cityofithaca.org/DocumentCenter/Index/811

Cornell’s 2,079-bed North Campus Residential Expansion looks ready for final approval. Apart from some details regarding the planting plan and rooftop fans, there are no changes to report. Cornell would start construction shortly after approval is granted, with the first phase (sophomore housing, west/left) ready by August 2020, and the second phase (freshman housing, east/right) complete by August 2021.

B. Project: Arthaus on Cherry Street 7:05
Location: 130 Cherry Street
Applicant: Whitham Planning & Design

Actions: Consideration of Amended Negative Declaration of Environmental Significance, Potential Consideration of Preliminary & Final Site Plan Approval

Project Description: The applicant proposes an as-of-right five-story building approximately 63 feet of height with gallery, office and affordable residential space at 130 Cherry Street, on the east side of the Cayuga Inlet. The site is currently the location of AJ Foreign Auto. The program includes ground floor covered parking for approximately 52 vehicles, plus 7,000 SF of potential retail/office and amenity space geared towards artists’ needs. Building levels two through five will house approximately 120 studio, one-bedroom and two-bedroom residential units. The total building square footage is 97,500 SF. All residential rental units will be restricted to renters earning 50 to 80 percent of the Area Median Income. The north edge of the property will include a publicly-accessible path leading to an inlet overlook. This has been determined to be a Type 1 Action under the City of Ithaca Environmental Quality Review Ordinance § 176-4B(1)(k), (h)[2], (n), and the State Environmental Quality Review Act (“SEQRA”) § 617.4(b)(11).

Project materials are available for download from the City website: https://www.cityofithaca.org/DocumentCenter/Index/946

Project approval was delayed by a month because the city wanted to make sure that the Weitsman scrap metal facility wouldn’t pose any air quality risks. In a letter to the city, the firm doing the environmental work says the did some outreach to Ben Weitsman, and the Ithaca facility doesn’t do many of the processing, it just collects, sorts and transports the scrap metal out to other sites. Also, Weitsman states the facility will be be closing soon – it’s been rumored for a while that another mixed-use project in the works for the Weitsman site.

C. Project: Student Housing 7:25
Location: 815 S. Aurora Street
Applicant: Stream Collaborative, Noah Demarest for Project Sponsors Todd Fox & Charlie O’Connor
Actions: Project Updates, Review of FEAF Part 3

Project Description: The project applicant proposes a new 49-unit student housing complex (16,700 SF footprint) comprised of three buildings constructed on a hillside on the east side of Route 96B, overlooking the proposed Chain Works District. The proposed buildings will contain (2) efficiency units, (3) one-bedroom units, (10) two-bedroom units, (20) three-bedroom units and (14) four-bedroom units. Amenities will include a gym and media room, with access to an outdoor amenity space on the first floor of Building B, and a roof terrace and lounge on the fourth floor of Building B. The project site shares the 2.85 acre site with an existing cell tower facility, garages, an office and a one-bedroom apartment. Site improvements will include walkways and curb cuts to be tied into a public sidewalk proposed by the Town of Ithaca. Fire truck access is proposed at the existing site entry at the south end of the property, with a new fire lane to be constructed in front of the ends of buildings A & B at the northern end of the site. The project will include 68 parking spaces, as required by zoning. The property located in the R-3b zoning district. A variance will likely be required for a rear yard setback deficiency. This has been determined to be a Type 1 Action under the City of Ithaca Environmental Quality Review Ordinance §176-4(B)(1)(k), (n), (B)(2), and the State Environmental Quality Review Act (“SEQRA”) §617.4(b)(11).

Project materials are available for download from the City website: https://www.cityofithaca.org/DocumentCenter/Index/982

At the last meeting, the board and the city planning director had issues with the facade materials and that given the small size of the units, the project was “too focused on profit” (generally it’s not a good idea to make these comments because of their subjective nature, but here they were qualified with the concerns over facade material and unit size). In the updated submission document, the design stays the same, and it’s not clear if the materials were updated. It does not appear the unit sizes were changed.

D. Project: Commercial Building – 3,450 SF 7:45
Location: 410 Elmira Road
Applicant: PW Campbell for Visions Credit Union
Actions: Project Presentation, Declaration of Lead Agency

Project Description: The applicant proposes to construct a 3,450 SF commercial building with a drive-through, parking area for 20 cars, a 940 SF amphitheater, and associated site improvements on the 1.56 acre project site. The site is currently vacant. The project site is in the SW-3 Zoning district and will likely require an area variance. The project is subject to the Southwest Area Design Guidelines. This has been determined to be a Type 1 Action under the City of Ithaca Environmental Quality Review Ordinance §176-4(B)(2), and the State Environmental Quality Review Act (“SEQRA”) §617.4(b)(11).

Project materials are available for download from the City website: https://www.cityofithaca.org/DocumentCenter/Index/1019

This is the Visions Federal Credit Union branch proposal. Generally, the public reaction has been favorable to the plan, which includes an amphitheater for outdoor shows and events. The Voice article about the project is here.

E. Project: Immaculate Conception Redevelopment Project (Mixed Use Housing) 8:00
Location: 320 W Buffalo Street
Applicant: Ithaca Neighborhood Housing Services Actions: Project Presentation, Declaration of Lead Agency

Project Description: The project involves the renovation/conversion of the existing two-story former school building into a mixed-use building with a two-story addition along North Plain Street, a new four-story apartment building, (2) three-unit townhome buildings, (1) four-unit townhome building, the renovation/conversion of a single family home into a two-family home, and the renovation of the “Catholic Charities” Building. The overall project will contain 78 dwelling units with 127 bedrooms. Total increase in square footage on the site will be 49,389 SF, from 62,358 to 111,747 SF. 9,274 SF of new and existing space in the former school will be commercial use. Site development will require demolition of one wing of the existing school building and one single-family home. The project also includes greenspace areas, 45 surface parking spaces, and other site amenities. The property is located in the R-2b zoning district; however the applicant has applied to Common Council for a Planned Unit Development (PUD). This has been determined to be a Type 1 Action under the City of Ithaca Environmental Quality Review Ordinance §176-4(B)(1)(k), (n), (B)(6), and the State Environmental Quality Review Act (“SEQRA”) §617.4(b)(11).

Project materials are available for download from the City website: https://www.cityofithaca.org/DocumentCenter/Index/1016

INHS’s $25.3 million redevelopment of the Immaculate Conception School has had some design tweaks, but the general site program remains the same. The Planning Board will be seeking answers regarding energy use/sources, pile driving, and aesthetic impacts on the neighborhood/consistency with neighborhood architectural character.

 

F. Project: Carpenter Circle Project 8:20
Location: Carpenter Park Road
Applicant: Andrew Bodewes for Park Grove Realty LLC
Actions: Project Presentation, Declaration of Lead Agency

Project Description: The project seeks to develop the existing 8.7-acre vacant parcel located adjacent to Route 13 and off of Third Street. The proposal includes a 64,000 SF medical office; two mixed-use buildings, which will include ground-level retail/restaurant/commercial uses of 23,810 SF, interior parking, 166 market-rate apartment units, and 4,652 SF of amenity space; and a residential building offering +/-42 residential units for residents earning 50-60% AMI. Site amenities will include public spaces for residents and visitors, bike parking, transit access for TCAT, open green space, a playground, and access to the Ithaca Community Gardens. The project includes 400 surface parking spaces and an internal road network with sidewalks and street trees. The project sponsor is seeking a Break in Access from NYS DOT to install an access road off of Rte 13. The property is located in the Market District; however, the applicant has applied to Common Council for a Planned Unit Development (PUD). The project will require subdivision to separate each program element. This has been determined to be a Type 1 Action under the City of Ithaca Environmental Quality Review Ordinance §1764(B)(1)(d), (i), (k), and (B)(6) and (8)(a) and the State Environmental Quality Review Act (“SEQRA”) §617.4(b)(11).

Project materials are available for download from the City website: https://www.cityofithaca.org/DocumentCenter/Index/1014

Interesting note from Part 1 of the Full Environmental Assessment Form (FEAF) – the phased buildout. Phase one is Cayuga Medical Center’s new office building. It would start construction in the fall and be completed in Spring 2021. The mixed-use building would begin construction the winter of 2019-20 and take about 20 months complete (so, a summer/fall 2021 timeframe). The affordable housing is phase three, and contigent on an affordable housing grant from the state. Once awarded, it would take about a year to build out.

The updated site plan indicates more tree plantings throughout the site, and the addition of a playground and plaza next to the affordable housing structure on the northern end of the site.

5. Old/New Business: July PRC, PRC Meeting start time 9:00
6. Reports 9:10
A. Planning Board Chair
B. BPW Liaison
C. Director of Planning & Development

7 Adjournment 9:30





News Tidbits 5/27/19

28 05 2019

Just a quick pose here to share and take a look at the city Planning Board Agenda tomorrow evening:

1. Agenda Review 6:00

(there is no Item 2. on the agenda)

3. Privilege of the Floor 6:25

4 Approval of Minutes: April 23, 2019 6:35

5. Site Plan Review


A Project: Greenstar Project Changes 6:40
Location: 770 Cascadilla Street
Applicant: Noah Demarest, Stream Collaborative (for owner)
Actions: Approval of Project Changes

Project Description: This project was approved by the Planning Board on June 26, 2018, with subsequent changes approved by the Board on March 26, 2019. The applicant is now returning to with requested items and to request additional changes. Project materials are available for download from the City website: https://www.cityofithaca.org/DocumentCenter/Index/774

The GreenStar project was halted by the board due to aesthetic concerns related to the value engineering. In response to the concerns about the blank wall that would face Route 13, the mural above has been proposed. The development team is also proposing new signage and replacing the wood bollards in the parking lot with lighted steel bollards.

Few further issues are expected to come up, and approval of these changes would allow the project to continue with construction. GreenStar is certain enough of the Board’s approval that its existing 10,000 SF space at 701 West Buffalo Street has been put up for lease.

B Project: Chain Works District Redevelopment Plan 6:50
Location: 620 S. Aurora St.
Applicant: Jamie Gensel for David Lubin of Unchained Properties
Actions: Presentation of Revised Phase 1, Public Hearing, Potential Preliminary Approval of Conceptual Site Plan

Project Description: The proposed Chain Works District is located on a 95-acre parcel traversing the City and Town of Ithaca’s municipal boundary. It is a proposed mixed-use development consisting of residential, office, commercial, retail, restaurant/café, warehousing/distribution, manufacturing, and open space. Completion of the Project is estimated to be over a seven-to-ten year period and will involve renovation of existing structures as well as new structures to complete a full buildout of 1,706,150 SF. The applicant applied for a Planned Unit Development (PUD) for development of a mixed-use district, and site plan review for Phase 1 of the development in 2014. The project also involves a Planned Development Zone (PDZ) in the Town and subdivision. This project is a Type I Action under the City of Ithaca Code, Environmental Quality Review Ordinance, §174- 6 (B)(1)(i),(j),(k),(n), (2), (6), (7),(8)(a)and (b) and the State Environmental Quality Review Act §617.4 (b)(2),(3), (5)(iii), (6)(i), and (iv), for which the Lead Agency issued a Positive Declaration of Environmental Significance on October 28, 2014. The Lead Agency held subsequently Public Scoping on November 18, 2014. The Lead Agency deemed the Draft GEIS adequate for public review on March 8, 2016, held the public hearing on March 29, 2016 and accepted comments until May 10, 2016. The Lead Agency filed a Notice of Completion for the FGEIS on March 5, 2019. The FGEIS includes the original DGEIS, all comments and responses on the DGEIS, revised information resulting from those comments, and updated information since the publication of the DEIS. The Board adopted findings on March 26, 2019. The applicant is now proposing Phase 1 of the project which entails the rehabilitation of buildings 21 and 24. Project materials are available for download from the City website: http://www.cityofithaca.org/DocumentCenter/Index/119

Doing a cross-check, I don’t quite see what changes have been made with Phase I, though early plans called for more office space (now mixed-use, with office space and 60 apartments). Approval of the concept plan (in relation to the FGEIS) is not the same as approval of the individual renovation plans, which have been submitted but will take a couple more months of the standard retinue of environmental assessment forms and declaration of findings. The approved EIS looks at the concept as a whole, while materials, construction impacts and other details associated with individual building plans still require going through the planning board.

C. Project: North Campus Residential Expansion (NCRE) 7:10
Location: Cornell University Campus
Applicant: Trowbridge Wolf Michaels for Cornell University
Actions: Continuation of Site Plan Review (Jessup Road Elevations & Conditions of Approval)

Project Description: The applicant proposes to construct two residential complexes (one for sophomores and the other for freshmen) on two sites on North Campus. The sophomore site will have four residential buildings with 800 new beds and associated program space totaling 299,900 SF and a 1,200-seat, 66,300 SF dining facility. The sophomore site is mainly in the City of Ithaca with a small portion in the Village of Cayuga Heights; however, all buildings are in the City. The freshman site will have three new residential buildings (each spanning the City and Town line) with a total of 401,200 SF and 1,200 new beds and associated program space – 223,400 of which is in the City, and 177,800 of which is in the Town. The buildings will be between two and six stories using a modern aesthetic. The project is in three zoning districts: the U-I zoning district in the City in which the proposed five stories and 55 feet are allowed; the Low Density Residential District (LDR) in the Town which allows for the proposed two-story residence halls (with a special permit); and the Multiple Housing District within Cayuga Heights in which no buildings are proposed. This has been determined to be a Type I Action under the City of Ithaca Environmental Quality Review Ordinance (“CEQRO”) §176-4 B.(1)(b), (h) 4, (i) and (n) and the State Environmental Quality Review Act (“SEQRA”) § 617.4 (b)(5)(iii) for which the Lead Agency issued a Negative Declaration on December 18, 2018 and granted Preliminary Site Plan Approval to the project on March 26, 2019. Project materials are available for download from the City website: http://www.cityofithaca.org/DocumentCenter/Index/811

This one’s starting to get a bit long in the tooth – Cornell was hoping to start construction by the beginning of summer, so that the first phase of dorms (Buildings 1 and 2 above) would be ready for occupancy in August 2021. According to Kim Michaels of landscape architect (and project team rep) TWMLA, they’re aiming for preliminary approval at the June 25th meeting, which would allow them to obtain construction permits to start work. The village of Cayuga Heights’ planning board gave their okay last month, and the town has granted preliminary site plan approval as well.

Changes include replacing the concrete retaining wall for Awke:won’s driveway with natural stone, minor grading adjustments, replacing plaza asphalt with concrete and porous pavers, revised plantings (partly at the town’s suggestion, partly because the demolition plans requires the removal of six more mature trees than first anticipated, and the project team is aiming to plant new trees to make up for it), revised sidewalks, bus stops and ADA ramps.

D. Project: Arthaus on Cherry Street 7:30
Location: 130 Cherry Street
Applicant: Whitham Planning & Design (on behalf of Vecino Group)
Actions: Consideration of Preliminary & Final Site Plan Approval

Project Description: The applicant proposes an as-of-right five-story building approximately 63 feet of height with gallery, office and affordable residential space at 130 Cherry Street, on the east side of the Cayuga Inlet. The site is currently the location of AJ Foreign Auto. The program includes ground floor covered parking for approximately 52 vehicles, plus 7,000 SF of potential retail/office and amenity space geared towards artists’ needs. Building levels two through five will house approximately 120 studio, one-bedroom and two-bedroom residential units. The total building square footage is 97,500 SF. All residential rental units will be restricted to renters earning 50 to 80 percent of the Area Median Income. The north edge of the property will include a publicly-accessible path leading to an inlet overlook. This has been determined to be a Type 1 Action under the City of Ithaca Environmental Quality Review Ordinance § 176-4B(1)(k), (h)[2], (n), and the State Environmental Quality Review Act (“SEQRA”) § 617.4(b)(11). Project materials are available for download from the City website: https://www.cityofithaca.org/DocumentCenter/Index/946

The IDA has given its approval on the tax abatement, so all that’s left on the approvals side of things is preliminary and final site plan approval – with those, Vecino can begin work on affordable housing grants to help fund the project. Vecino will be pursuing a less-competitive 4% low-income housing tax credit (the typical, highly-competitive LIHTCs are 9%; quick refresher, these credits are sold to outside investors and the money is then used to fund the project), and the project team seems comfortable stating that construction will start by the end of the year for a 2021 completion.

E. Project: Student Housing 7:50
Location: 815 S. Aurora Street
Applicant: Stream Collaborative, Noah Demarest for Project Sponsors Todd Fox & Charlie O’Connor
Actions: Project Presentation, Potential Consideration for Preliminary Site Plan Approval

Project Description: The project applicant proposes a new 49-unit student housing complex (16,700 SF footprint) comprised of three buildings constructed on a hillside on the east side of Route 96B, overlooking the proposed Chain Works District. The proposed buildings will contain (2) efficiency units, (3) one-bedroom units, (10) two-bedroom units, (20) three-bedroom units and (14) four-bedroom units. Amenities will include a gym and media room, with access to an outdoor amenity space on the first floor of Building B, and a roof terrace and lounge on the fourth floor of Building B. The project site shares the 2.85 acre site with an existing cell tower facility, garages, an office and a one-bedroom apartment. Site improvements will include walkways and curb cuts to be tied into a public sidewalk proposed by the Town of Ithaca. Fire truck access is proposed at the existing site entry at the south end of the property, with a new fire lane to be constructed in front of the ends of buildings A & B at the northern end of the site. The project will include 68 parking spaces, as required by zoning. The property located in the R-3b zoning district. A variance will likely be required for a rear yard setback deficiency. This has been determined to be a Type 1 Action under the City of Ithaca Environmental Quality Review Ordinance §176-4(B)(1)(k), (n), (B)(2), and the State Environmental Quality Review Act (“SEQRA”) §617.4(b)(11). Project materials are available for download from the City website: https://www.cityofithaca.org/DocumentCenter/Index/982

The project description is not accurate. According to the memo from STREAM, the project is 65 units, but still 141 beds, with 2 one-bedroom, 40 two-bedroom, and 23 three-bedroom units. This has created some minor exterior changes, mostly in the window arrangements. A report from TAITEM chimed in to say that the project does meet the city’s Green Building Policy (which is approved in concept but has slowly been trudging through the legal details). Neighbors have expressed concerns with the project

F. Project: Mixed Use Apartments (77 Units) 8:10
Location: 510 W MLK/ State Street
Applicant: Stream Collaborative, Noah Demarest for Project Sponsors Todd Fox & Charlie O’Connor
Actions: Project Presentation, Declaration of Lead Agency, Review – Draft FEAF Parts 2 & 3

Project Description: The applicant proposes to construct a 4- to 6-story building with a footprint of 13,730 SF and a GSA of approximately 74,700 SF. The project will have 2,100 SF of retail space on the first floor facing W State/ MLK Street and 77 housing units, permanently affordable to households making 50-70% Area Median Income (AMI). Building amenities include a community room, bike and general storage, a laundry room and a fifth floor lounge with access to a rooftop terrace. The project site has frontage on three streets (W State/MLK, Corn and W Seneca) and is in two zoning districts: CBD 60 in which the maximum height is 60’ and B-2d in which the maximum height is 40’. Neither zone has a prescribed number of stories. The project is subject to the Downtown Design Guidelines and will likely require an area variance for rear yard setback. This has been determined to be a Type 1 Action under the City of Ithaca Environmental Quality Review Ordinance §176-4 B(1)(h)[4], (k) & (n), and the State Environmental Quality Review Act (“SEQRA”) §617.4(b)(11).

Looks like the number of units has settled on 77. The question here remains what to do with the State Street elevation, given the likely zoning change will force a 15′ setback from the 5th floor instead of the sixth as proposed.

G. 312 E Seneca Street – Sketch Plan 8:30

The original design above received the planning board equivalent of a roundhouse kick to the jaw, so we’ll see what happens with round two, for which it is hoped the Stavropoulos family and their architect (presumably Jagat Sharma as before) have read the Downtown Design Guidelines. Given its location on the edge of Downtown Ithaca, this is a CBD-60 site, six floors, 100% lot converge, no parking covering.

A potential wild card here is the recent rumor that the owners of the properties next door on North Aurora have put the assemblage up for sale. A redesign may or may not include those properties.

6. Old/New Business 9:00
-Special Meeting Agenda for 4-30-19
-Board Retreat Topics
-Sexual Harassment Training

7. Reports 9:10
A. Planning Board Chair
B. BPW Liaison
C. Director of Planning & Development

8. Adjournment 9:30





News Tidbits 3/30/19

31 03 2019

original renders

revised renders

1. Let’s start off with an update from the city of Ithaca Planning Board. As reported by the Times’ Edwin Viera, The board was not happy about the proposed changes to the GreenStar project, which were summarized in a previous blog post here. The revised site layout and materials were approved, but the board was unhappy about the loss of windows on the northeast faced and asked for an alternative if windows were no longer feasible, either graphic art or a GreenStar insignia to provide visual interest. The project will be back before the board next month.

Apparently, it was the month to express discontent, as issues were also raised with the City Centre signage and design components of the Vecino Arthaus project, which did away with the grime graphics and went with a marginally better blocky red facade, but I will henceforth call “architectural chicken pox”. Some concerns were also raised with ADA compliance, and the board asked for windows in the stairwells to encourage their use. The environmental review was okayed, and the project will be heading for preliminary approval next month.

The planning board granted preliminary approval to Cornell’s North Campus Residential Expansion, but the project also needs approvals from the town of Ithaca (to be discussed next Tuesday) and the village of Cayuga Heights. The goal is to start construction on the 2,000+ bed project by this summer. The Chainworks District’s final generic environmental impact statement (FGEIS) was also accepted on a unanimous vote – it’s not approval of the 1.71 million SF mixed-use project, but it’s a big step in that direction. The summarized 127-page report is here, and the city report establishing its findings and review of proposed mitigations is here.

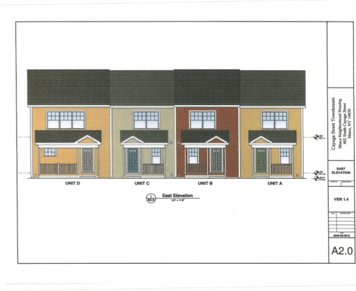
This didn’t come up much before, and that’s probably a good thing because it was rather drab, but 402 South Cayuga Street was revised with a larger window on the three bedroom unit (at far left) and some more vibrant colors. However, to stay within budget (something that defeated INHS once before and Habitat for Humanity as well), the project asked to stick with vinyl, to which the board okayed. Expect this 4-unit for-sale low-to-moderate income townhouse project to begin construction later this year, with completion before the year is out.

2. It was a bit surprising to see how far ahead Cardamone Homes has their Woodland Park project planned out. Quick refresher, this is a 65ish unit residential development off of Warren Road in the town of Lansing; the original plan from the early part of the decade was for about 80 units, but it was reduced after initial approvals. The “-ish” part comes from the 25 single-family home lots, since at least one buyer chose to merge with its neighbor. The other part of the development consists of 40 townhomes, and as ecerything Cardamone does, these are high-end “McMansion” style products. A 2,800-4,000 SF Frank Betz-styled home typically goes in the $550k-750k range with a few customized models even higher than that. The 2,500 SF townhouses are priced in the low to mid 400s. This is arguably the only gated community in Tompkins County.

The project began construction around 2014, and it looks like they’re expecting construction to continue through 2026. It looks like 2019 will see four new townhomes (including the two above, 6 and 8 Woodland Way in a photo from last month), and two or three single-family homes along Oakwood Drive. IT’s a bit of a guessing game on the homes because they use “to be developed” (most), “to be built” (2) and “to be constructed” (1). The site also shows three for sale, but it’s dated, as one of those was sold in January. McMansions may not be fashionable as they were fifteen years ago, Woodland Park still sells at a steady enough clip to keep the project moving along. The long story short for Woodland Park is that construction will be continuing at its slow but steady pace for quite some time yet.

3. Just a little something here from the Town of Ithaca Planning Board – the town of Ithaca is looking to build a modest expansion to its Public Works facility. The Public Works department at 106 Seven Mile Drive handles snow removal, paving, yard waste collection, vegetation control, storm water management, and parks/trails/water/sanitary sewer/road maintenance services. The department has been growing in recent years and needs additional space. A feasibility study was commissioned last June, and a plan is now moving forward.

Overall, it’s not a large addition to the 19,400 SF building; 1,425 SF of office space, six parking spaces and minor landscaping and grading. The project is a small institutional addition, and per state guidelines, it will likely not be going through an in-depth environmental review. The addition is a bit unusual in that it’s essentially a bumpout of the existing space, one that creates a completely new face for the public entrance and offices. Expect an unassuming one-story addition with aluminum windows and metal exterior panels. The addition will be designed by HOLT Architects with several engineering and landscaping partners (the usual retinue of T. G. Miller (Civil Engineering), Elwyn Palmer (Structural Engineering), TWMLA Landscape Architects, and a mechanical/electrical engineering firm, Sack Associates). It’s the same group of firms that did the study last year.

4. Quick note to point out that 327 West Seneca Street is nor long for this world, if the plastic and plywood are any indication. They’re indicative of asbestos removal prior to demolition – seal a build up, take the asbestos out, take the building down. Visum Development Group is planning a 12-unit “workforce housing” moderate-income apartment building on the site.

Speaking of Visum, Ithaca’s prolific developer has been scouting new markets for a while, and landed in Boise, Idaho for their next project, “The Vanguard”, an eight-story, 75-unit apartment building in Boise’s downtown. According to local reports, most development projects finish municipal review in two months, something that is flat out impossible for a project of substantial size in Tompkins County. Interestingly, it comes with no parking, and instead hosts bike racks for 75 bikes. Don’t take this to mean that Visum’s no longer interested in Ithaca, however; there have at several projects in the works, including condominiums in Ithaca town, 201-207 North Aurora, 815 South Aurora, 413-15 West Seneca and the State/Corn Street trio.

//www.instagram.com/embed.js

5. Dunno if Instagram embeds are going to work here, but click STREAM Collaborative’s post just above if it doesn’t show up. The modular pieces for 323 Taughannock have begun arriving on site and are being assembled. The units were built by Benson Wood Products and are being put together but a local firm, D Squared (the Dakes) of Lansing.





News Tidbits 3/11/19

12 03 2019

1. The city of Ithaca and The Vecino group have come to a tentative agreement. The two have been negotiating since entering into a 90-day Exclusive Negotiating Agreement at the end of last year. While Vecino is still looking at the financial models for the conference center space, it appears that the city is ready to move forward with a formal agreement to be voted on by the Ithaca Urban Renewal Agency (IURA) and the Common Council, and then to have the building plans reviewed by the Planning Board, and then the sale of the property to be brokered by the IURA and agreed to by the Common Council. If approval is granted in good order and state funding is obtained (Vecino is pursuing 4% low income housing tax credits, vs. the more competitive 9% variety), then construction could start on the $95 million mixed-use project by late 2020.

2. GreenStar will be asking the IURA for a $400,000 loan to assist in the construction of their new flagship location at 770 Cascadilla Avenue. It does not seem to be related to their construction woes, as the initial paperwork was filed in January, but it makes for rather awkward timing. The loan is likely to be approved without significant reservation thanks to GreenStar’s reputation and the promise of dozens of living wage jobs, though the IURA is unhappy with what is described as “weak collateral”, and it has some concerns with GreenStar’s ability to fundraise.

Important note – the paperwork mentions one of GreenStar’s funding sources will be the buyer of the current Space A Greenstar at 700 West Buffalo Street, who so happens to be “the owner of the Cascadilla Street property”. This buyer will pay $2 million for the building when GreenStar moves out in early 2020.

At first glance, one might think that’s Guthrie. But Guthrie transferred ownership of the parcel to “Organic Nature LLC” last month. Organic Nature LLC is a company owned by the project team building City Harbor. In short, the City Harbor developers are buying the Space @ Greenstar, and likely have plans for the property.

3. If you’re an urban planner – and I hope this blog is interesting to you if you are – the IURA is issuing a request for qualifications for a parking study. The project will include three major tasks: analysis of the current parking system; determination of possible scenarios of programs and actions for the future direction of the parking system that are financially sustainable; and preparation of a strategy and an implementation plan, with estimated costs and a schedule. TLDR; look at existing operations, describe future directions (ten year period), make parking-related recommendations and implementation recommendations. Knowledge of transportation demand management and experience with designing strategic initiatives to handle parking needs will be a big plus. Submission packets due April 12th to Director of Parking Pete Messmer, more info at the end of the agenda packet here.

4. Quick note – the North Campus housing proposed by Cornell was modified slightly at the request of city boards. The new design adds “break points” in the facade to activate the central wings of the buildings and make the building masses seem less imposing. The general massing and material choices remain unchanged.

5. Mid-sized Collegetown landlords Greg and Mataoula Halkiopoulos (of Matoula’s Houses) have decided to renovate a decrepit 19th century carriage house at the rear of their property at 214 Eddy Street, and turn it into a three-bedroom, 839 SF rental. 214 Eddy is in the East Hill Historic District, so the design, by local architect John Barradas, will need to be approved by the Ithaca Landmarks Preservation Commission. It looks like a practical renovation, respectful of the carriage house’s form but also with a modern touch. Early Design Guidance will be offered at the March ILPC meeting, and any decisions on a Certificate of Appropriateness are still a few months out.

6. There have been some major changes to the Perdita Flats plan at 402 Wood Street. Previous version here. For one, it now has frontage on Fair Street and will have a Fair Street address. The building and garden have been re-positioned, the footprint reduced slightly (38’x36′ to 36’x36′), larger porch, modified exterior cladding materials, and the driveway has been removed at the Planning Board’s suggestion. The building remains 4 units and 7 bedrooms, and STREAM Collaborative penned the redesign.

The wood shiplap siding and standing-seam black metal siding are a bit of an acquired taste, especially with the wood oiled or left to grey naturally. But the house is still planning to be a net-zero energy showcase of what can be done with environmentally sustainable multifamily housing, and that’s the real statement to developers (Courtney Royal and Umit Sirt) are trying to make. The owners will be applying for incentives from the NYSERDA Low-Rise Residential New Construction Program and are hoping to attain the Zero Carbon Petal of the Living Building Challenge.





Cornell Fine Arts Library (Rand Hall) Construction Update, 12/2018

22 12 2018

Cornell’s new Fine Arts Library (FAL) is coming along. The Mui Ho Fine Arts Library will occupy the top floors of Rand Hall, a ca. 1911 structure that long housed the design studios of the Department of Architecture. My own memories of Rand were relegated to the outside, usually a small throng of architecture students getting their nicotine fix just beyond the entrance (and on a few occasions, substances more illicit).

Rand has always been the workhorse of the Architecture School and a fine example of early 20th century industrial architecture, but for the past twenty years Cornell actively made one attempt or another to get rid of it – in their attempts to build Milstein, the university proposed to tear down Rand not once, but twice. However, there was significant pushback by alumni and historic preservation groups against the idea, and it was one of the factors that weighed into the Koolhaas design for Milstein Hall, which functions as more an addition to the AAP School than a replacement.

The interior will consist of three levels of mezzanine shelving for the 125,000-volume Fine Arts Library’s collection, as well as interspersed work/study spaces. The library stacks will consist of “inverted ziggurats” accessed by stairs and walkways. Floor-to-ceiling space will range from 48 feet on the north side of the reading room to 7.5 feet in some sections of the library stacks. Long, unobstructed hallways will run the length of Rand Hall. The large variation is meant to convey both grand spaces and “private engagement” with the books. 8,000 square feet of shop space for the AAP program will occupy the first floor. Other features will include reading carrels with built-in monitors and lockable book storage, public computing stations and a seminar room. The roof will host a 1,500 square-foot structural deck, outfitted with base plates for temporary structures as well as power, water and digital connections. The semi-elliptical roof pavilion will be built at a later date.

In this renovation and expansion, Rand’s daylight-factory windows were replaces with single panes, the east stairwell was removed, and a steel canopy is going up over the roof. The building will have two entrances, one public and one for AAP only. In an attempt to limit energy use, the building utilizes rigid foam insulation, installing double-glazed windows and all mechanical systems are being replaced. Like Cornell’s other Central Campus building, Rand/FAL is tied into the Combined Heat and Power system, which uses a mix of renewable and conventional fuel (mostly natural gas) sources.

As previously covered, the architect is a Cornell alum, Vienna-based Wolfgang Tschapeller M.A. ’87. More of Tschapeller’s very avant-garde designs can be found at his website here. The project is being funded in part by a  $6 million dollar donation from Cornell alumna, architect and UC-Berkeley professor Mui Ho ’62 B. Arch ’66.

The $21.6 million project is expected to be completed in June 2019, after a construction period of 18 months. Welliver is the general contractor.

Now at about the two-thirds mark, most of the new windows are in, with clips still in place for the newly installed windows on the east facade. The area of “damage” was the result of the teardown of the eastern stairwell, which was a much more recent construction and not original to the structure. The Carisle VP 705 on the roof is a self-adhering waterproof and fireproof fabric to limit moisture penetration from the aluminum panels.





News Tidbits 12/17/18

18 12 2018

Here’s a look at the agenda for the city of Ithaca Planning and Development Board meeting this month. It’s a week earlier than usual due to the Christmas holiday. Notes and comments in italics below.

1. Agenda Review 6:00
2. Special Order of Business – Presentation of the Greater Southside Plan 6:05
3. Privilege of the Floor 6:20
4. Approval of Minutes: November 27, 2018 6:35

5 Special Permits 6:40

A. Project: Bed & Breakfast Special Permit
Location: 130 Coddington Road
Applicant: Noah Demarest
Actions: Declaration of Lead Agency, Public Hearing, Determination of Environmental Significance, Potential Consideration of Special Permit Approval

Project Description: The applicant is seeking a Special Permit for use of the property as a homeowner occupied Bed and Breakfast. The property was originally issued a Special Permit in 1998 for operation of the five bedroom home as a homeowner occupied Bed and Breakfast; the Special Permit was not renewed in 2003, as required by §325-9c(4)(g)[3], and has therefore expired. During a recent home inspection, it was discovered the property had continued to operate absent a Special Permit, necessitating a new Special Permit application. No physical alterations to the building or the site are proposed. Issuance of a Special Permit is an Unlisted Action under the City of Ithaca Environmental Quality Review Ordinance (“CEQRO”) and the State Environmental Quality Review Act “(“SEQRA”)

This is a simple case of where the previous owner never renewed the five-year permit and didn’t tell the new buyer, who planned to continue using the home as a live-in Bed & Breakfast. No letters of opposition are on file. Approval, with the proper completion of all necessary forms, is likely to be straightforward.

B. Project: Bed & Breakfast Home Special Permit 6:50
Location: 2 Fountain Place
Applicant: Jason K Demarest
Actions: Declaration of Lead Agency, Public Hearing, Determination of Environmental Significance, Potential Consideration of Special Permit Approval
Project Description: The applicant is seeking a Special Permit to operate the existing 4,492 SF nine (9) bedroom residence located at 2 Fountain Place as a Bed and Breakfast Home. The owner is proposing to utilize four (4) of the nine (9) bedrooms as guest bedrooms for a period not to exceed 21 consecutive days, with a fifth bedroom utilized for home-owner occupancy. Guest occupancy will be limited to two persons or one family per guestroom. No exterior modifications are proposed to the existing home to establish the B&B use, and the existing house is compatible with the character of the neighborhood. Existing parking for seven (7) vehicles exists in the turnaround off Willets Place. The applicant does not propose cooking facilities in the guestrooms, and food service is to be limited to guests of the B&B. No other B&B Homes exist within 500 feet of the property. One sign that is five (5) SF maximum in area and not self-illuminated will be installed in compliance with Chapter 272 of the City Code, “Signs.”

Under city zoning code, B&Bs, which are to be owner-occupied, are allowed to four bedrooms to be used for the guests. A zoning code variance to use eight bedrooms as guest occupancy seemed unlikely, but the new owners believe the B&B may still be viable. Local architect Jason K. Demarest (brother of STREAM’s principal architect, Noah Demarest) is known for his historic restorations and historically-inspired design work, so his involvement is auspicious for those who hope that the century-old mansion and former Ithaca College president’s house retains its character.

6 Site Plan Review

A. Project: Chain Works District Redevelopment Plan (FGEIS) 7:00
Location: 620 S. Aurora St.
Applicant: Jamie Gensel for David Lubin of Unchained Properties
Actions: Review FGEIS & Town Comments – No Action
Project Description: The proposed Chain Works District seeks to redevelop and rehabilitate the +/-800,000 sf former Morse Chain/Emerson Power Transmission facility, located on a 95-acre parcel traversing the City and Town of Ithaca’s municipal boundary. The applicant has applied for a Planned Unit Development (PUD) for development of a mixed-use district, which includes residential, commercial, office, and manufacturing. The site’s redevelopment would bridge South Hill and Downtown Ithaca, the Town and the City of Ithaca, by providing multiple intermodal access routes including a highly-desired trail connection. The project will be completed in multiple phases over a period of several years with the initial phases involving the redevelopment of the existing structures. Current redevelopment of this property will focus on retrofitting existing buildings and infrastructure for new uses. Using the existing structures, residential, commercial, studio workspaces, and office development are proposed to be predominantly within the City of Ithaca, while manufacturing will be within both the Town and City of Ithaca. Project materials are available for download from the City website: http://www.cityofithaca.org/DocumentCenter/Index/119

Hey, they’re starting to include documentation links in the agenda descriptions now! Most of the town’s comments are minor modifications and a possible correction on one of the traffic lane analyses. There’s a boatload of paperwork to dig through, so this meeting is just a chance for the planning board to look at the town’s comments, digest some of the supplemental files, and make sure there are no red flags or major concerns within that subset of information.

B. Project: North Campus Residential Expansion (NCRE) 7:20
Location: Cornell University Campus
Applicant: Trowbridge Wolf Michaels for Cornell University
Actions: Determination of Environmental Significance
Project Description: The applicant proposes to construct two residential complexes (one for sophomores and the other for freshmen) on two sites on North Campus. The sophomore site will have four residential buildings with 800 new beds and associated program space totaling 299,900 SF and a 59,700 SF, 1,200-seat, dining facility. The sophomore site is mainly in the City of Ithaca with a small portion in the Village of Cayuga Heights; however, all buildings are in the City. The freshman site will have three new residential buildings (each spanning the City and Town line) with a total of 401,200 SF and 1,200 new beds and associated program space – 223,400 of which is in the City, and 177,800 of which is in the Town. The buildings will be between two and six stories using a modern aesthetic. The project is in three zoning districts: the U-I zoning district in the City in which the proposed five stories and 55 feet are allowed; the Low Density Residential District (LDR) in the Town which allows for the proposed two-story residence halls (with a special permit); and the Multiple Housing District within Cayuga Heights in which no buildings are proposed. This has been determined to be a Type I Action under the City of Ithaca Environmental Quality Review Ordinance (“CEQRO”) §176-4 B.(1)(b), (h) 4, (i) and (n) and the State Environmental Quality Review Act (“SEQRA”) § 617.4 (b)(5)(iii). Project materials are available for download from the City website: http://www.cityofithaca.org/DocumentCenter/Index/811

This is likely to be the most contentious part of the meeting. The planning staff have conducted their analysis. Some traffic mitigation measures are sought, including circulation and mass transit / multi-modal transit improvements. The city will make sewer system upgrades a stipulation of project approval, and being next to the Cornell Heights Historic District, the board as Lead Agency wants a more sensitive use of materials and material colors, and extensive vegetative screening to be reviewed further before approval. But the most debated component, the energy use impacts, the city feels is effectively mitigated through the proposed measures by the applicant team.

I’m going to raise one point of correction though – the number of beds is going up to 2,079, but the planning staff should note that a campus-owned fraternity house, the former Sigma Alpha Mu building at 10 Sisson Place (the chapter moved to 122 McGraw Place), is coming down to make way for the project, so the gross number of beds is at least 30 less that that figure.

C. Project: Falls Park Apartments (74 Units) 7:50
Location: 121-125 Lake Street
Applicant: IFR Development LLC
Actions: Review of FEAF Part 3 – No Action
Project Description: The applicant proposes to build a 133,000 GSF, four-story apartment building and associated site improvements on the former Gun Hill Factory site. The 74-unit, age-restricted apartment building will be a mix of one- and two-bedroom units and will include 7,440 SF of amenity space and 85 parking spaces (20 surface spaces and 65 covered spaces under the building). Site improvements include an eight-foot wide public walkway located within the dedicated open space on adjacent City Property (as required per agreements established between the City and the property owner in 2007) and is to be constructed by the project sponsor. The project site is currently in the New York State Brownfield Cleanup Program (BCP). Before site development can occur, the applicant is required to remediate the site based on soil cleanup objectives for restricted residential use. A remedial investigation (RI) was recently completed at the site and was submitted to NYSDEC in August 2018. The project is in the R-3a Zoning District and requires multiple variances. This is a Type I Action under the City of Ithaca Environmental Quality Review Ordinance (“CEQRO”) §176-4 B(1) (h)[2], (k) and (n) and the State Environmental Quality Review Act (“SEQRA”) §617-4 (b) (11). Project materials are available for download from the City website: http://www.cityofithaca.org/DocumentCenter/Index/852

Part III of FEAF is the city planner-written review of impacts, proposed mitigations, and whether the lead agency feels the mitigations are appropriate and effective. Some stormwater, remediation plan and other supplemental materials are still needed before a declaration of significance can be made. 

D. Project: New Two-Family Dwellings 8:10
Location: 815-817 N Aurora
Applicant: Stavros Stavropoulos
Actions: Public Hearing
Project Description: The applicant proposes to demolish an existing two-family residential structure and construct two new 1,290 SF two-family dwellings on a 9,590 SF lot. The existing residential building is a legally non-conforming building with a side setback deficiency (2.9 feet instead of the required 5 feet). The proposed redevelopment will include four parking spaces for four three-bedroom apartments. The applicant is requesting the Board’s approval to use the landscaping compliance method for parking arrangement. The project site is located in the R-2b Zoning District and meets all applicable zoning lot and setback requirements. This is an Unlisted Action under the City of Ithaca Environmental Quality Review Ordinance (“CEQRO”) and the State Environmental Quality Review Act (“SEQRA”). Project materials are available for download from the City website: http://www.cityofithaca.org/DocumentCenter/Index/859

City staff were really unhappy about this plan last month, and it was implied that this was one of the examples of “bad” infill that may lead to the new single primary structure overlay. However, barring extreme circumstances (think Maguire at Carpenter Park), review will continue under the current regulations. No new materials appear to have been submitted since the last meeting. 

E. Project: Maguire Ford Lincoln Additions and Improvements 8:30
Location: 370 Elmira Road
Applicant: John Snyder Architects PLLC
Actions: Public Hearing, Potential Determination of Environmental Significance

Project Description: The applicant proposes to demolish a portion of the existing building and construct two additions with updated exterior materials. The existing building is 18,500 GSF, with 2,265 GSF proposed for demolition. The new building will be 24,110 GSF. Site improvements include incorporation of a new pedestrian walking path, and site connections to Wegmans. Approximately 311 parking spaces are proposed to accommodate customer, service parking, employee, and display parking. The project site is located in the SW-2 Zone, is subject to the 2000 Southwest Design Guidelines, and will require a zoning variance for a front yard that exceeds the maximum permissible in the SW-2 district (34 feet maximum permitted, 69-feet 3-inch setback proposed). This is an Unlisted Action under the City of Ithaca Environmental Quality Review Ordinance (“CEQRO”) and the State Environmental Quality Review Act (“SEQRA”); however, it will be treated as a Type I Action for the purpose of environmental review. Project materials are available for download from the City website: http://www.cityofithaca.org/DocumentCenter/Index/860

The revised plans include modified architectural features (more windows, a green wall), and a greater amount of vegetated landscaping to comply with zoning. On-site solar panels are being considered per board recommendation, but the old building was not designed to hold the weight of solar panels. The new wings will be designed to host panels. Heat pumps are being evaluated for some functions, but some of the heavy-duty components like the service bay will likely rely on modified conventional fuel systems. The building will meet or exceed NYS Energy Code requirements.

F. West Hill- Tiny Timbers – Sketch Plan 8:50

This one has been a long time coming. Tiny Timbers bought a 5.45 acre parcel on the south end of Campbell Avenue’s 400 block back in September 2016, and has long planned one of its cluster home developments on the vacant lot. As noted at the time on the blog:

“Dolph et al. are looking to do a similar development to the one in Varna on a 5.45 acre parcel at the south end of the 400 Block of Campbell Avenue, which was noted in a weekly news roundup when it hit the market back for $195k in August 2015. The Journal’s Nick Reynolds touched on it in a through write-up he did earlier this week. The comprehensive plan calls this portion of West Hill low-density residential, less than 10 units per acre. Current zoning is R-1a, 10000 SF minimum lot size with mandatory off-street parking, although maybe a cluster subdivision would come into play here. The Varna property is a little over 6 units per acre. If one assumes a similar density to the Varna project, the ballpark is about 35 units, if sticking to the 10000 SF lot size, then 23 units.

On the one hand, expect some grumbling from neighbors who won’t be thrilled with development at the end of their dead-end street. On the other hand, these small houses are modestly-sized and priced, they’ll be owner-occupied, and if the Varna site is any indication, the landscaping and building design will be aesthetically pleasing.”

G. 112-114 Summit Ave – Sketch Plan 9:10

This one required some fact-checking, because 114 Summit Avenue was the former Cascadilla school dorm that came down last year to make way for the Lux apartment project at 232-236 Dryden Road. A better address for this project might be “238 Dryden”, and the rumor mill says it’s by Visum Development Group, who developed the Lux. Although the exact positioning seems uncertain, the parcel north of the Lux is CR-3 (three floors, 40% lot coverage, parking and houselike features such as gables and porches required), and the remaining adjoining parcels are CR-4 (four floors, 50% lot coverage, no parking required). With student housing experiencing a little more slack in the market lately, it’s not clear if this is student housing, or another use.

7. Old/New Business PRC Meeting Time/ Date 9:30

8. Reports
A. Planning Board Chair
B. BPW Liaison
C. Director of Planning & Development 9:40

9. Adjournment 9:50





News Tidbits 11/26/18

27 11 2018

Just to get this out in time, he’s a look at what will be a rather long but very interesting city of Ithaca Planning Board meeting tomorrow evening.

1 Agenda Review 6:00

2 Special Order of Business – Planning Report on ILPC recommendation to designate the former Delaware, Lackawanna, & Western Railroad Station at 701 West Seneca Street. 6:05

3 Privilege of the Floor 6:20

4 Approval of Minutes: October 23, 2018 6:35

5 Site Plan Review

A. Project: Chain Works District Redevelopment Plan (FGEIS) 6:40
Location: 620 S. Aurora St.
Applicant: Jamie Gensel for David Lubin of Unchained Properties
Actions: Distribution of FGEIS & Review of Schedule – No Action
Project Description: The proposed Chain Works District seeks to redevelop and rehabilitate the +/-800,000 sf former Morse Chain/Emerson Power Transmission facility, located on a 95-acre parcel traversing the City and Town of Ithaca’s municipal boundary. The applicant has applied for a Planned Unit Development (PUD) for development of a mixed-use district, which includes residential, commercial, office, and manufacturing. The site’s redevelopment would bridge South Hill and Downtown Ithaca, the Town and the City of Ithaca, by providing multiple intermodal access routes including a highly-desired trail connection. The project will be completed in multiple phases over a period of several years with the initial phases involving the redevelopment of the existing structures. Current redevelopment of this property will focus on retrofitting existing buildings and infrastructure for new uses. Using the existing structures, residential, commercial, studio workspaces, and office development are proposed to be predominantly within the City of Ithaca, while manufacturing will be within both the Town and City of Ithaca.

No decisions expected tonight, but the distribution of the FGEIS (Final Generic Environmental Impact Statement) is a major step forward. From here, the Planning Board will review and critique the document, and when satisfied, it will vote for a resolution of completion. A recommendation to adopt the Chainworks PUD zoning and the FGEIS findings will follow, and if successful, the Common Council will also vote to adopt the PUD zoning. That would complete generic review for the site – new builds would still come to the board as necessary, but renovations could potentially begin not long afterward. Timing-wise, the final approvals are still a few months out, but this massive 910+ unit project is slowly closing in on approvals, and potentially, construction.

B. Project: North Campus Residential Expansion (NCRE) 6:55
Location: Cornell University Campus
Applicant: Trowbridge Wolf Michaels for Cornell University
Actions: Review of FEAF Part 3
Project Description: The applicant proposes to construct two residential complexes (one for sophomores and the other for freshmen) on two sites on North Campus. The sophomore site will have four residential buildings with 800 new beds and associated program space totaling 299,900 SF and a 59,700 SF, 1,200-seat, dining facility. The sophomore site is mainly in the City of Ithaca with a small portion in the Village of Cayuga Heights; however, all buildings are in the City. The freshman site will have three new residential buildings (each spanning the City and Town line) with a total of 401,200 SF and 1,200 new beds and associated program space – 223,400 of which is in the City, and 177,800 of which is in the Town. The buildings will be between two and six stories using a modern aesthetic. The project is in three zoning districts: the U-I zoning district in the City in which the proposed five stories and 55 feet are allowed; the Low Density Residential District (LDR) in the Town which allows for the proposed two-story residence halls (with a special permit); and the Multiple Housing District within Cayuga Heights in which no buildings are proposed. This has been determined to be a Type I Action under the City of Ithaca Environmental Quality Review Ordinance (“CEQRO”) §176-4 B.(1)(b), (h) 4, (i) and (n) and the State Environmental Quality Review Act (“SEQRA”) § 617.4 (b)(5)(iii). All NCRE materials are available for download at: http://www.cityofithaca.org/DocumentCenter/Index/811

Materials provided indicate that city planning staff are reasonably satisfied that the energy impacts of the massive North Campus housing plan have been mitigated. The only new letter on record this month is a letter of concern from the City Historic Preservation Planner about the project’s visual and aesthetic impacts on the Cornell Heights Historic District to the west.

C. Project: Apartments (12 Units) 7:25
Location: 327 W. Seneca Street
Applicant: Noah Demarest for Visum Development
Actions: Consideration of Preliminary & Final Site Plan Approval
Project Description: The applicant is proposing to construct a three-story apartment building with 12 units. Project development requires the removal of the exiting building and parking area. The project will include exterior bike storage, a trash enclosure, walkways, landscaping, signage, and lighting. The project is in the B2-d Zoning District and has received the required variances for front-, side-, and rear-yard setbacks. A small portion at the rear of the property is in the CDB-60 District. The project has received Design Review. This is an Unlisted Action under the City of Ithaca Environmental Quality Review Ordinance (“CEQRO”) and the State Environmental Quality Review Act (“SEQRA”), for which the Lead Agency made a Negative Determination of Environmental Significance on September 25, 2018.

Not much to add regarding Visum’s workforce housing (80% area median income) proposal for the State Street Corridor. The project is expected to receive $200,000 from the latest round of the Community Housing Development Fund, the affordable housing fund jointly paid into by the city, county and Cornell. In this case, Cornell will cover $170,000 and the city $30,000. Cornell doesn’t have any hand in this project, but having one entity pay most of the grant for a given project makes it less complex to administer. 

D. Project: Falls Park Apartments (74 Units) 7:35
Location: 121-125 Lake Street
Applicant: IFR Development LLC
Actions: Public Hearing, Review of FEAF Parts 2 & 3
Project Description: The applicant proposes to build a 133,000 GSF, four-story apartment building and associated site improvements on the former Gun Hill Factory site. The 74-unit, age-restricted apartment building will be a mix of one- and two-bedroom units and will include 7,440 SF of amenity space and 85 parking spaces (20 surface spaces and 65 covered spaces under the building). Site improvements include an eight-foot wide public walkway located within the dedicated open space on adjacent City Property (as required per agreements established between the City and the property owner in 2007) and is to be constructed by the project sponsor. The project site is currently in the New York State Brownfield Cleanup Program (BCP). Before site development can occur, the applicant is required to remediate the site based on soil cleanup objectives for restricted residential use. A remedial investigation (RI) was recently completed at the site and was submitted to NYSDEC in August 2018. The project is in the R-3a Zoning District and requires multiple variances. This is a Type I Action under the City of Ithaca Environmental Quality Review Ordinance (“CEQRO”) §176-4 B(1) (h)[2], (k) and (n) and the State Environmental Quality Review Act (“SEQRA”) §617-4 (b) (11).

Note that IFR is a Travis Hyde Properties business entity. The attempt to gain approval for an environmentally compromised project site is likely going to be more heavily scrutinized given the recent controversy regarding proposed demolition procedures for the Old Library site.

E. Project: New Two-Family Dwellings 7:55
Location: 815-817 N Aurora
Applicant: Stavros Stavropoulos
Actions: Declaration of Lead Agency, Review of SEAF Parts 2 & 3
Project Description: The applicant proposes to demolish an existing two-family residential structure and construct two new 1,290 SF two-family dwellings on a 9,590 SF lot. The existing residential building is a legally nonconforming building with a side setback deficiency (2.9 feet instead of the required 5 feet). The proposed redevelopment will include four parking spaces for four three-bedroom apartments. The applicant is requesting the Board’s approval to use the landscaping compliance method for parking arrangement. The project site is located in the R-2b Zoning District and meets all applicable zoning lot and setback requirements. This is an Unlisted Action under the City of Ithaca Environmental Quality Review Ordinance (“CEQRO”) and the State Environmental Quality Review Act (“SEQRA”).

F. Project: Maguire Lincoln 8:15
Location: 370 Elmira Road
Applicant: John Snyder Architects PLLC
Actions: Declaration of Lead Agency, Review of FEAF Parts 2 & 3
Project Description: The applicant proposes to demolish a portion of the existing building and construct two additions with updated exterior materials. The existing building is 18,500 GSF, with 2,265 GSF proposed for demolition. The new building will be 24,110 GSF. Site improvements include incorporation of a new pedestrian walking path, and site connections to Wegmans. Approximately 311 parking spaces are proposed to accommodate customer, service parking, employee, and display parking. Landscape design will improve vegetative cover; however, it will not meet the City of Ithaca’s impervious/pervious requirements (12%). The project site is located in the SW-2 Zone, is subject to the 2000 Southwest Design Guidelines, and will require a zoning variance for a front yard that exceeds the maximum permissible in the SW-2 district (34 feet maximum permitted, 69-feet 3-inch setback proposed). This is an Unlisted Action under the City of Ithaca Environmental Quality Review Ordinance (“CEQRO”) and the State Environmental Quality Review Act (“SEQRA”); however, it will be treated as a Type I Action for the purpose of environmental review.

G. Sketch Plan – 312 E Seneca Street, Jagat Sharma 8:35

312 East Seneca is a 4,482 SF three-story mixed-use building on the edge of Downtown Ithaca. The building was long-owned by Ithaca architect Jagat Sharma, who ran his practice from the building (1416 SF), the Alley Cat Cafe (1926 SF), and a four-bedroom apartment (1140 SF) on the upper floors.

A few years ago, the site was floated as part of the potential footprint for Visum Development’s Seneca Flats mixed-use project, though at the time it was made clear that it was not an essential property to the development, and simply a possibility if Sharma chose to sell to Visum. Sharma didn’t – in September, he sold the building to an LLC associated with the Stavropoulos family for $800,000, double the assessed value. That lofty price relative to assessed value was a big clue something was planned here, and it looks like the first glimpse of that will come tomorrow night. The Stavropoli of West Hill have been growing their assets through acquisition or development for the past several years, including the 4-unit North Aurora project in item E. above.

Normally, the Stavropoulos family is low-key about development, preferring lower-profile infill builds in established neighborhoods – the largest project of theirs to date is the 11-unit 107 South Albany project. They often turn to local architect Daniel Hirtler, but this time, Collegetown favorite Jagat Sharma will have a hand in redeveloping the building that housed his office for so many years. This would be Sharma’s first building downtown since the Greenstate Building (127 West State Street) in 1991. For the record, this would be their second Sharma commission, with a duplex planned for 209 Hudson Street being the other (granted, that’s also a modular structure).

Zoning-wise, this is CBD-60. Within that zone, Sharma can design a five-story building up to 60 feet tall, no parking required, with any variety of commercial or residential uses. Any design will have to conform with the recently-adopted Downtown Design Guidelines. The Stavropoli are likely to do all-residential or residential with ground-floor retail. The current building is quite narrow, but it also only occupied the east half of the lot – a new structure could practically touch the neighboring building at 308 East Seneca.

H. Sketch Plan – 114 Catherine Street, Jagat Sharma 8:55

Things are about to get a bit confusing. A few years ago, the Lambrou family, mid-sized Collegetown landlords and developers of Collegetown Park, presented and built an infill project at 114 Catherine Street – while all the working docs used 114 Catherine Street, the address of the existing building set back into the lot, the new 3-unit, 17-bedroom building was christened 116 Catherine Street.

This new building is expected to be a replacement for the existing 114 Catherine Street, the Mission Apartments, and is expected to complement 116 Catherine in appearance (Jagat Sharma designed that as well). Zoning here is CR-4, up to four floors, with a maximum of 50% lot coverage (but not parking required). Expect this to be student housing – probably not too big, a few dozen beds at most, but something to take note of nevertheless.

I. Sketch Plan – 130 Cherry Street, Residential, Vecino Group 9:15

130 Cherry Street is a 4,600 SF auto body shop that’s been for sale for quite a while now. The rumor mill says Vecino CEO Rick Manzardo was walking around the area a couple of weeks ago, and it looks like there was a reason for that. The plan being floated is affordable “artist housing”. This wouldn’t be a new concept to Vecino, who renovated a vacant warehouse in Troy into the 80-unit Hudson Arthaus. What makes the Arthaus unique among affordable housing is that it offers on-site amenities geared to artists, as well as income-based rents for those who make only a modest living while engaged in their creative pursuits.  Those amenities include a wood shop, on-site storage units, gallery spaces managed by a local non-profit, and a computer/digital work suite.

Zoning here is “Cherry Street District” Waterfront Zoning. Since it’s north of Cecil Malone Drive, housing is allowed – but not on the first floor. The first floor is for light industrial and many commercial uses, including restaurants, stores and offices. No ground-level storage permitted, however. In this “artist housing” format, the first floor would likely be the exhibition/gallery.workshop space. The building may be up to five floors with 100% lot coverage once setback requirements are met. Bonus for this site, the Cherry Artspace is a few hundred feet away. With about 179,000 SF in building capacity offered by the site and zoning before setbacks are considered, a potential project could be fairly sizable.

6. Old/New Business 9:35

7. Reports 9:40
A. Planning Board Chair
B. BPW Liaison
C. Director of Planning & Development

8. Adjournment 10:00