1. In Lansing, a local developer seems to have gotten the message when it comes to a small senior housing project. As reported by Dan Veaner at the Lansing Star, the latest version of Eric Goetzmann’s Lansing Meadows calls for 20 2-bedroom units ~1500 SF (square feet) each in ten buildings along a loop road, “Lansing Meadows Drive”. The project uses the entire parcel, with the eastern end set aside for a small (less than 2500 SF) neighborhood retail component.
Goetzmann is less than happy with the latest version, saying that financially it doesn’t work, but he needs to get something built to fulfill the requirements of the BJ’s tax abatement in 2011 – the senior housing component of the project has been delayed so long, the county has prepared legal action to recuperate abated taxes if Goetzmann doesn’t get the senior housing started ASAP. The answer at the last pair of meetings went from “I just want to get this done” to “We’re looking to build 12 units and if we’re successful we’re looking to build some more, which really didn’t bode well for negotiation – at this point, a low or breakeven ROI is a price Goetzmann is willing to pay over paying the county and village millions. The Planning Board is satisfied with the newest design, and a vote to approve a special permit to start construction could be as soon as April 9th. The actual construction docs would take ten weeks and the project has to go out to bid contractors, but Goetzmann is optimistic the units will be built this year.
It’s a quiet month otherwise for the village, with a cell tower and a parking lot expansion the only other things on the latest agenda.
2. Let’s take a quick look at some noteworthy sales from the past month:
The Belleayre Apartments at 702 Stewart Avenue sold for $5,434,500 on the 22nd. The seller was Sebastian Mascaro, who some readers might remember because he previously owned the Chapter House before it burnt down. The buyer was Kimball Real Estate. The 44-unit building, which retains classic Collegiate Gothic details popular when it opened in 1933, is assessed at $3.85 million. Mascaro had paid $4.25 million for the building in November 2011. Don’t expect any big changes here, but it’s evidence of the strength of the local multi-family market.
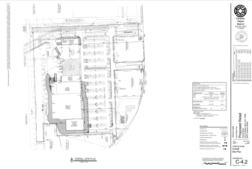
9 Dart Drive, a 4.56-acre vacant parcel in the village of Lansing, sold for $52,500 to VPA Development on March 22nd. Yes, there is something planned here – the village Board of Trustees is aware. VPA Development’s mailing address is the same as local businessman Nick Bellisario, who is building warehouses on Hall Road in Dryden, and is a partner in the Varna Tiny Timbers (The Cottages at Fall Creek) project. Zoning here is the village’s Medium Density Residential – single-family and two-family homes, schools and religious facilities. Zoning is one unit per 20,000 SF for a single-family home, 25,000 SF for a duplex. So in theory, perhaps 8 or 9 home lots if single-family.
3. One of the questions that makes a fairly regular appearance in the inbox – will Maplewood finish on time in July 2018? It’s a good question, one that Cornell and EdR are damn determined to give a yes answer for. To make up for weather delays and other issues, the Maplewood construction team is requesting to do interior work to as late as 10:30 PM Monday-Friday. Keep in mind, this is on top of the Saturday hours and previous workday extension (four hours, two on both sides, to 7 AM – 7 PM). The town of Ithaca, which has to approve these changes, seems amenable to it so long as no generators are operating, doors and windows are closed, and supervisory staff is present – basically, don’t disturb the neighbors.
At last check, unseasonably cold and wet weather over the past several months had led the project to fall behind, and subcontractors to move to steadier jobs elsewhere. The project has fallen as much as 25 days behind schedule. The extensions, if approved, would create an 85.5 hour construction week, manned by different crews.
Side note, the town of Ithaca hasn’t had much else to review lately – the planning board has only had two meetings out of the scheduled six so far this year. The other projects were a single-family home lot subdivision on Trumansburg Road, and renewing the approvals for New Earth Living’s 31-unit Amabel single-family ecohousing development on Five Mile Drive. I have not seen anything underway when I’ve driven by, and the website has not been updated in a while, so it’s nice to know that something is still in the works.
4. For good housekeeping – things are slow in Dryden, so slow they cancelled their monthly planning board meeting. Things are also fairly slow in the town of Lansing, where the big controversy is a plan to relocate the shooting range for Lansing Rod & Gun. The issue is that environmentalists have criticized the gun shot’s proposal for lead shot remediation, as well as saying the range is too close to Salmon Creek. The town is still reviewing documents and has yet to make a decision.
5. Recently, the Collegetown Neighborhood Council floated a Business Improvement District (BID) similar to the Downtown Ithaca Alliance. The reception was lukewarm, according to the Times’ Matt Butler. It’s not that the concept is disliked, although some smaller property owners are a bit nervous about being outvoiced by bigger players. It’s more a concern that a BID would likely be financed by a property tax surcharge, something that the county’s (and arguably, one of upstate’s) most expensive neighborhoods would rather not have to deal with. A DIA-type group may engage in security, local beautification, event planning, or other needs as the business owners as we see fit; as of now, it’s still just a hazy idea, but we’ll see what happens with it.
6. The relative quiet in the project pipeline extends to Ithaca City. At the February planning board meeting, U-Haul corporate had submitted plans for a 5-story building that, in the words of Matt Butler, “they kicked that idea to the curb….just bludgeoned the dude.” Apparently it was too much – too big, too tall, no attractive. Also, the project for 207-209 First Street is not as bad as initially feared. Both existing two-families will be renovated, but not torn down, and a new duplex would be built at the rear of the property lots. The board says it could be similar to the Aurora Street Pocket Neighborhood, and was supportive of the plan overall.
This month was one of the quietest meeting agendas I’ve seen in years – the only project up for formal review and approval was the Stewart Park Inclusive Playground, as well as updates on the Chain Works District zoning, and the City Harbor plans. City Harbor was a late addition. There is plenty in the pipeline, some of which will come forward in the next few months; just seems there’s a bit of a lull at the moment.
7. Just a reminder – meetings for the East Hill Village neighborhood-scale proposal will be held at the The Space @ Greenstar on Monday 4/9 (an update of the past several months, 4/11 (workshops for concept designs), and 4/12 (presentation of preferred concept designs and alternatives). All meetings will be 6-8 PM, and the public is encouraged to attend.
Here’s a copy of the presentation from last May’s meeting – not anything groundbreaking, but it makes it clear that Cornell’s land holding are much more patchwork than folks might realize. I suppose the owner of the East Hill Car Wash stands to make a pretty penny at some point.





















































































































