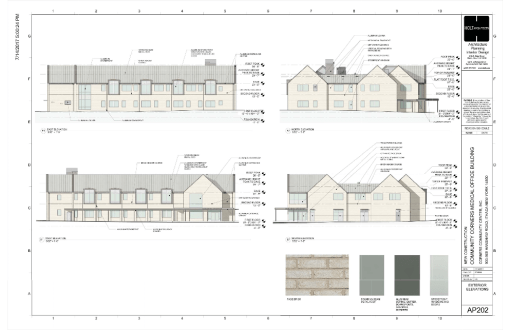
1. Here’s the latest update to “The Village at Varna” the Trinitas proposal for the hamlet of Varna. The project had originally started with 224 units and 663 beds, and this latest iteration is down to 219 units and 602 beds. The most notable changes in this new layout are the incorporation of a three-story parking garage to conserve green space, and a larger retail area fronting Dryden Road – there’s nothing in the filing, but at a glance it’s about double the previous size, so from 800 to something around 1600 SF.
With the inclusion of a garage, that frees up more green space – at 55% of the site, it’s now only 4% lower than the requirement (59%, the site is a mix of Varna Hamlet zone types). 541 parking spaces are provided, vs. the 549 required by zoning, and there are some setback variances requested for setbacks from the property line buffers (the buffers themselves are the required 20′ width).
One thing that stands out to me as a potential issue isn’t shape or scale, but unit mix. Of those 219 units, 110 are four-bedroom units. Beyond the argument that four-bedroom units are clearly student oriented (the demand simply isn’t there within the general market), I’m doubtful the demand for 110 four-bedroom units exists outside of Collegetown. Most grad students who take a shine to Varna also opt for smaller spaces, and the undergraduates who fill 4 bedroom+ units generally aren’t interested in living this far out. What modest demand there is for four-bedroom units, is identified and met – projects like 802 Dryden have already incorporated a number of four-bedroom units in their plans. I understand that from a cost per square foot perspective, it’s more efficient to do four-bedroom units (one four-bedroom doesn’t need two kitchens, living rooms and bathrooms like two two-bedroom units would). But it would likely be tougher sell than Trinitas realizes, especially with Cornell planning to expand their campus offerings in the next few years.
To be frank, I’m firmly in the camp that Trinitas could do something good here, but I’m not sure this is it.
2. Let’s just throw another piece of bad news out there – even with the project redesign, PPM Homes cannot make the Ithaca Glass redevelopment work financially. That’s unfortunate not just because of the ten units of infill housing that may not be built, but it and the Wyllie Dry Cleaner redevelopment had received a $500,000 RESTORE NY grant. While that money is untouched, it doesn’t look good to the state that a project that the city vetted and advocated over competing projects has stalled out. To be fair, apparently not even Ed Cope knew of the structural issues at the time of application. The later revision for the Ithaca Glass site removed Wyllie’s from the grant award, and the status of that project isn’t clear. The IURA notes that Cope has talked with INHS about possibly selling them the site so they could go through with the original smaller and modern-looking overbuild, but the issue was that the overbuild wasn’t structurally feasible without a huge investment, and INHS has a lot of coals in the fire at the moment (offhand there’s the Salvation Army site, 209-213 Elm Street, 402 South Cayuga, the Green Street Garage, and Hamilton Square). It’s not looking good at the moment.
3. Speaking of which, quick update on the Salvation Army rebuild and expansion – it’s still in the works between them and INHS, but going slower than first anticipated. The project probably won’t be applying for construction funding this fall, but instead it’s expected to be reviewed by the city, approved and seeking affordable housing funds sometime next year.
4. At least the airport expansion project seems to be moving along. According to airport staff, the state has a heavy hand in it, and there have been weekly meetings to source fund to fill the $8 million gap needed to bring the $22 million project forward. Bids have already opened on phase one, the construction of the new main terminal, and the bidding period will close by the end of the month. Phase two, the geothermal power and new concourse, will be bid in early 2019, as will the third phase, the new solar array and U.S. customs facility.
5. Some good news on the affordable housing front, the county is set to disburse joint Cornell-Ithaca-Tompkins Community Housing Development funds funds to help Cornerstone Group’s Milton Meadows proposal move forward in Lansing, eventually totaling $256,875 towards the 72-unit apartment project. Milton Meadows would serve 14 households at up to 50% AMI (area median income, 100% = $59,000/year for a single person), 42 at 60% AMI, and 16 at 80% AMI.
In the next round of funding to be awarded this fall, it looks like the county will award two grants – one to INHS, $140,000 from the CHDF to help pay for two of the four for-sale townhouses at 402 South Cayuga Street (the 80% AMI ones, as the two 100% AMI middle-income units aren’t eligible), and $300,000 to Visum for the twelve units of affordable housing planned at 327 West Seneca Street. The Visum project is conditional since the administrative committee for the funds is awaiting additional details, and the project needs to be approved by the city. Perhaps PPM Homes should reach out for a discussion about whether an application could make its West Seneca project (item #2) work.
6. Developer Scott Morgan’s 16-unit Cayuga Vista Townhomes aren’t in formal review yet, but the land has exchanged hands – $139,500 on the 15th, every penny the sellers wanted. This makes it considerably more likely that the rental project (2 one-bedroom, 12 two-bedroom, 2 three-bedroom) will be coming forward to the town of Lansing planning board over the next few months.
7. For those who dream of owning a B&B, the William Henry Miller Inn is for sale. The building dates from 1878 and served as the private residence of the Osborn family from 1914 to 1996. In 1998, innkeeper Lynette Scofield purchased the property and renovated it into the Inn, which opened the following year. The Inn has enjoyed rave reviews on travel advising websites.
For $1.499 million, you too can be an innkeeper – the sale includes all furnishings, future bookings and “infinite good will”. It definitely reads as if a very strong preference will be given to those who maintain the inn and its high standards vs. other uses. The inn has nine beds and eleven bathrooms, with an accessory owner’s cottage with one bed and bath. It’s something to fill out your daydreams this weekend.















































































































































