1. The heated debate over the Park Grove project in the village of Lansing continues. The primary opposition to rezoning continues to be the Jonson family of Ithaca Home (Forest City Realty / IJ Construction), and residents of their Heights of Lansing development at the end of Bomax Drive. Reasons cited include loss in property values, increased traffic, and slowing the completion of their own project.
Pardon the incredulity when hearing about property value concerns in a community with well-documented property appreciation. Furthermore, only two houses have been built in the Heights of Lansing development in the past couple of years. Since the project first launched in 2006, they have sold 17 townhouses and homes, in a development that planned for about 80. They’ve been moving at a snail’s pace for years, and it;s hard nothing to do with the zoning of nearby property. Another angry speaker asked why Lansing has to shoulder the county’s housing burden, but it’s not just Ithaca that has housing issues. In short, while I’m critical of this specific proposal, the zoning change makes sense. The board may consider a zoning change at its November 7th meeting.
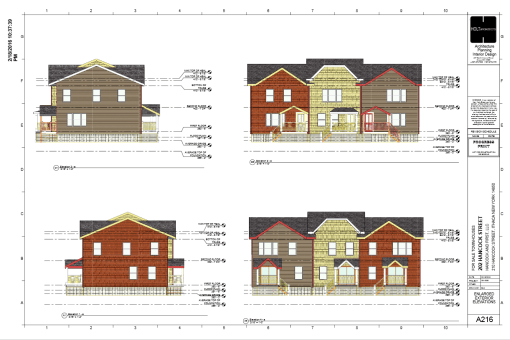
2. Thanks to the county planning department, we have a little more information about NRP Groups’ revival of the Holochuck Homes project on West Hill. It appears Tompkins is intending to award $300,000 in Community Housing Development Funds to the development team. The CHDF funds go towards affordable housing projects intended for households making 80% of Area Median Income or less (AMI is about $54,000/year, so roughly $43,000/year and less). It looks like 89 of the 106 units in this townhouse proposal will qualify for the funds; most likely the other 17 will be priced in the 80-100% AMI range. Like 210 Hancock and other larger projects, units typically aren’t restricted to one specific income bracket, there tends to be a mix of lower and lower-middle incomes. It also appears that Arbor Housing and Development, an affordable housing developer based out of Corning, will be partnering with NRP Group on the project. Ithaca would be new territory for Arbor Housing, whose next closest site is an apartment building in Odessa in Schuyler County.
3. Looks like Tiny Timbers is one step closer to reality. The property at 5 Freese Road, once known as “Mt. Varna”, was sold on the 25th by Nick Bellisario to “VTT LLC” for $184,122.59. Presumably, VTT is short for Varna Tiny Timbers. Bellisario and co-owner Otis Phillips had purchased the land for $90k in 2006, and considered a couple different development plans for the site, including a 20-unit modular townhouse project for the site several years back. The land was most recently assessed at $100k. Philips is bowing out of ownership, but county documents show Bellisario and Tiny Timbers creator Buzz Dolph are co-partners in the LLC. The 15-unit Tiny Timbers project will be hosting an open house Saturday the 29th, and may be considered for final approval by the town of Dryden in November.
4. Up on Ezra’s former farm, a hefty donation will finance the renovation of Noyes Lodge into a campus welcome center. The family of trustee Marvin Tang ’70 is donating $3 million to partially finance the creation of what will be the Marvin Y. Tang Welcome Center, pending approval by the Board of Trustees. The gift responds to a challenge grant created by mega-donor Atlantic Philanthropies (funded by Charles Feeney ’56), which offered up to $3 million in matching funds to donations towards the new welcome center – so with $6 million secured, the renovation’s financing is secured and will be able to move forward. Cornell has long considered a reception and exhibition space by the gorges, having mulled over but ultimately backing away from a plan penned by architect Richard Meier in the late 1980s. Tang, now retired, was a venture capitalist based in Hong Kong, and the regional chairman of a recruitment firm for business executives.
The Noyes Lodge, a 9,100 SF building that opened in 1958 as a womens’ dining hall, is currently used for language classes and training. Those functions would be moved into newly renovated space in Stimson Hall. JMZ Architects of Glens Falls, a favorite of the SUNY System, will be the design firm in charge of the renovation and re-purposing. The exhibition space will be the work of Poulin and Morris Inc. of New York City. Cornell plans to open the new welcome center by Summer 2018.

5. There seem to have been some changes to the Village Solars project up in Lansing. According to the newly-uploaded planning board minutes, the site plan has been revised from 174 units to 206 units, but most of that is tied up in unit reconfiguration. Reaching out for specifics, here’s the response from Rocco Lucente the younger:
“We have found that the micro unit floor plans are very, very popular and the three bedroom units have been the only units we’ve had any problems with getting rented in a timely manner (like most companies we like to be rented out by the end of Cornell’s season if possible), so we will be modifying the three bedroom floor plans to become micro units and our new junior one bedrooms, which are slightly larger than the micro unit and includes a separate bedroom and living room/kitchen area. The total number of bedrooms goes up very, very slightly and the square footage should remain relatively unchanged.”
The micro units he’s referring to are the units created during phase two, when two larger units were split into smaller units as a sort of testing of the waters – apparently it worked out quite well. It’s worth noting that three-bedroom units had the highest vacancy rate in the Danter study. We’ll see if this creates significant design changes, but one thing’s for certain, it drives up the unit count per building – for instance, Building M, slated to be built in the next phase, has increased from 17 to 24 units.


Modern Living Rentals has started advertising units for 201 College Avenue. Business partner Visum is shooting for August 2017, which will be a very quick pace – hopefully William H. Lane Inc., the general contractor, is up to the challenge. With heat included in the rent, a three-bedroom will run anywhere from $3,250-$4,170/month, a two-bedroom for $2,170/month, and a one-bedroom with top-floor patio access will cost $1,670/month, which puts it pretty close to the high end of the Collegetown market. The “New York City-style loft apartments”, as the ads boast, come with such building amenities as a high-end gym, media lounge, bike room, and high-end security system. Apartment amenities include full furnishings, stainless steel appliances, granite countertops, in-unit dishwasher machines, washer and dryers, 16′ ceilings, and cargo nets. Yes, cargo nets – they extend from the bedroom and over the living room, and are billed as “the perfect place to relax and study”, capable of holding up to five people. I asked architect Noah Demarest about them, and he said the idea came from developer Todd Fox, and that examples can be found on Pinterest.
Meanwhile, Charlie O’Connor’s three-bedroom two-family houses underway on Old Elmira Road will be ready by February, and come in at $2,100/month per unit.
X. For those who might be interested, sign up for the Tompkins County Housing Summit can be found here. Attendance is free, and comes with a meet and greet on the night of Wednesday November 30th at the Greenstar workspace (“The Space”), and a day-long summit on Thursday December 1st (attendees can choose whether to attend one or both). It appears that there’s a wait-list already for the Thursday summit, but the Wednesday night reception still has space for new registrants.
















































































