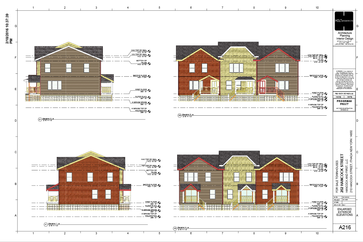
Affordable Housing Week 2016 » 202_hancock_2


Actions

Leave a comment