For Vecino Group of Springfield, Missouri, Ithaca is a match made in heaven. It’s a nationally-known firm with two specialties – affordable housing and student housing, two things that a college town struggling with affordability issues would seem to be a perfect fit for.
Vecino has made a concerted effort to break into the Northeastern United States in the past few years. Among the developments it has pursued are Asteri Utica, Mosaic Village in the Capital Region city of Cohoes (“Kuh-hos”, as living in the Albany area has taught me), Intrada Saratoga, Libertad in Elmira and the 444 River Lofts and Hudson Arthaus in Troy. Perhaps the most well known proposal to Ithacans would be the 218-unit Asteri Ithaca planned for East Green Street Downtown.
There is a logic to the naming. Vecino projects identify segments of their target market through the project names. Asteris, like the one proposed for the Green Street Garage, provide not just affordable housing, but several specialized units for those with developmental disabilities. Intradas, like the 157-unit Intrada going up in Saratoga Springs, provide affordable housing with a handful of units set aside for youth aging out of foster care. Muse is the student housing, Talia provides housing and services for those recovering from domestic violence, and Libertads offer housing to formerly homeless veterans. So, kinda just a neat little quirk there.
Arthaus, as one might guess, is the artist-focused affordable housing. The sort of tough part to make clear is that this is not limited to artists. The housing will be available to anyone who meets the income requirements. It just has amenities geared towards creative types, like a woodshop and storage space and gallery space run by an outside non-profit. 130 Cherry Street, where the project is located, was developed for commercial use in the late 1970s, according to documents filed with the planning board, and operated as an automotive repair facility for the last 20 years, AJ Foreign Auto.
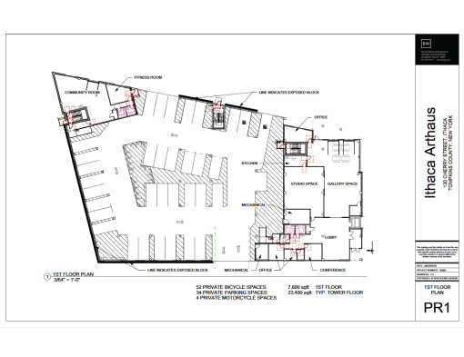
The city planning board were on board with it from the start. Plans call for a five-story, 97,500 square-foot building. Among the features are support service office space, a community room, a gallery/studio (in partnership with the Cherry Arts, according to state docs from October) and a fitness room. It’s about 123 units (48 studio, 55 1-bedroom, 20 2-bedroom) of affordable housing, 50-80% of area median income, plus a one-bedroom unit for the property manager for 124 total. A breakdown of units and rents is at the end of this post and on the NYS HCR website here. Forty units (the ESSHI grant units in the rental breakdown table) will be set aside for young adults aged 19-26 for formerly foster care and homeless youth, and administered by Tompkins Community Action.
Along with the housing, the building would include parking for about 36 vehicles within and outside the building ,and 7,748 square feet of potential retail or office and amenity space geared toward artists. Also included is space for 52 bikes and 4 motorcycles, and access to Ithaca CarShare. The exterior will be finished out in light grey, medium grey and red fiber cement panels, with the internal courtyard areas having white stucco finishes. The ground level will have dark grey fiber cement panels and dark grey masonry.
A public promenade will run along the west side of the property next to the waterfront, pending approval from the NYS Department of Environmental Conservation. The project was designed by Vecino’s in-house team, BW Architects and Engineers (remember, they’re a big firm that can afford to have their own architecture team). The project is also seeking to get arts groups involved in the design, to give it a unique local flair. The project will be built to state (NYSERDA) “Performance Path for Energy Star” standards for sustainable housing (Tier II, >25% energy savings above code). The city was looking to start off on the right foot with the upzoned waterfront, and this is exactly the kind of creative, affordable project they were hoping for.
The project pursued and has been awarded a PILOT agreement from the Tompkins County IDA. The PILOT request included a one-time sales tax exemption request on building materials, a one-time mortgage tax exemption on the mortgage recording fee, and a non-standard property tax abatement request. In lieu of the typical seven-year or enhanced ten-year abatement, Vecino asked for and received a 30-year payment in lieu of taxes (PILOT) agreement that would save them about $3.54 million off the lifetime of the tax deal. With the sales and mortgage tax exemptions, the total tax savings comes to $4.54 million, with Arthaus still generating an additional $3.73 million in new tax revenue over the life of the PILOT (note that the $3.73 million figure does not include existing tax payments, and is calculated using the current property taxes as a baseline; the PILOT would not eliminate existing property tax revenue, it reduces the rate of new tax revenue growth). The total project cost is $31,948,378. The PILOT approach has been used previously, with Ithaca Neighborhood Housing Services’ 210 Hancock project in the city’s North Side neighborhood.
Neighbors to the site were generally supportive of the plan, while the council members who represent the site (George McGonigal and Cynthia Brock of the First Ward) were not, deeming it too big and too much of a concentration of affordable housing. The Arthaus project was approved by the city in April 2019.
NYS Homes and Community Renewal docs say $14,078,249 is being provided in a HCR Supportive Housing Opportunity Program (SHOP) subsidy loan, and $10,871,535 from Low Income Housing Tax Credits. Vecino is only pursuing 4% credits vs. the more lucrative and harder to get 9% credits, which made obtaining financing easier – it pays to be big and be able to leverage cost efficiencies elsewhere. The tax credit and loan package was approved by the state in October.
Alongside Vecino on the project team are Fagan Engineers of Elmira doing the civil engineering work, local firm Taitem Engineering as energy consultants, and Ithaca’s Whitham Planning and Design for landscape architecture and community outreach. CRM Property Management of Rome (Oneida County) will manage the property on Vecino’s behalf.
With the fence and dust guard up, it seems plausible that this project’s in site prep, taking apart the old body shop and readying the site for excavation and foundation work. December was the approximate date given for a construction start back when it was approved, and the plan is to open for occupancy in late summer or early fall of 2021. 150 construction jobs and four permanent jobs will be created by the Arthaus project.



















































































































































































































