
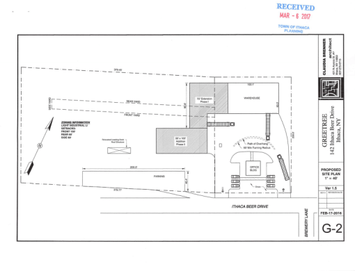
1. Let’s start by touching real quick on this past week’s Ithaca town meeting. The Bundy subdivision and the renovation of the former Wings Over Ithaca space at East Hill Plaza were approved, per Matt Butler at the Times. The Greentree project was reviewed and the board granted itself lead agency to conduct environmental review. Greentree owner John Gaunt is still unsure whether he’ll keep the Elmira Road building, which is where Ithaca Beer got its start in the late 1990s. Although primarily a warehouse/ag industry project, there will be some potentially public-friendly features, namely a garden park and picnic area. The board expressed a desire to see Greentree work with neighbor Ithaca Beer for landscaping between the two buildings.
2. I followed up with Lansing town planning consultant Michael Long regarding English Village. As readers might remember from last week, that’s the 58 single-family home lots and 59 townhouses proposed somewhere in Lansing – didn’t know where because that was the first anything has been published about it. Here’s Long’s response:
“The English Village is a concept developed by Jack Young to build a network of single family homes and apts. /condos that surround the existing soccer fields along Water Wagon [sic] Road. It is still very early in the conceptual phase so there has not been an formal application made as yet, but a project that has been talked about for many, many years. We don’t have anything specific yet but is a project “In-progress”.”
Jack Young is a Cayuga Heights businessman (and chair of their zoning board of appeals), who owns a sizable amount of undeveloped land in Lansing; most of it is used for farming. The soccer fields on Waterwagon Road are just east of The Rink, which is putting in a new climbing tower. There’s been plenty of conventional suburban development up this way since the 2000s, although in recent years the new starts have slowed as conventional suburban layout have lost some of their allure to walkable urban or truly rural properties. We’ll have to keep an eye out and see what happens.

3. Now turning attention over to Dryden. Apparently the town of Dryden thinks I’m with the Ithaca Times. Anyway, two new projects have popped up on the radar this week.
The first is a 6,016 SF, 8-unit apartment on the 500 Block of Etna Road just east of the airport. All units will be 1-bedrooms. The developer is Ithacan Salim Kasimov; with partner Yelena Kurbanova, they’ve picked up some properties in and around the area for home construction over the past few years, although this might be their first multi-family building. Simple, maybe a little bland – a floor-separating exterior lap band and two different colors of siding would do wonders.
The project exceeds zoning, where 2 units/acre is allowed, and this is pursuing 8 units on 1.78 subdivided acres (the other lot holds a two-family home). SEAF here, floor plans here. The argument was that these are all one-bedroom units, and a typical house is 3+ bedrooms, so it’s not a substantial variance. The project was in planning before the rural zoning code was updated, which complicates matters.
According to Dryden town planning director Ray Burger, the ZBA asked for more information, but the application has been withdrawn. This project is in limbo for the time being.
The second is called the “Pineridge Cottages”, and went to the Dryden Planning Board for a sketch plan review this week. This one came up on this blog a long time ago – it’s a proposal for about 20 single-family rental homes on about nine acres on the corner of Dryden Road/Route 13 and Mineah Road. At the time, the logic was that the density requirements would let it slip under the radar, since the project is under 4 units/acre and could have avoided triggering most site plan review regulations. But maybe with the revised zoning laws, that’s no longer the case.

4. It’s a Tiny Timber out in the wild! Not something that was expected while covering the Maple Festival, but there it was on the property. This would be the very first one, according to the Tiny Timbers blog. The TT blog says it’s in Hector (which is correct, it’s 500 feet from the Tompkins/Schuyler County line), but the Wellspring Farm advertises itself with a Trumansburg address, so this was really just fortuitous circumstance. The model is a Model L Lofted with optional green corrugated metal roofing.
It’s looks like sales are off to a good start – the 14 Farm Pond Circle lot is pending, as is the Ellis Hollow Road lot. A Tiny Timber Big Cube is also expected to replace a dilapidated home at 104 Grandview Place on Ithaca’s South Hill. Prospects are so good, Buzz Dolph plans to rent a warehouse on Dryden’s Hall Road to serve as an assembly facility for the modular components, and is looking for construction partners in neighboring markets. Modest, affordable owner-occupied housing is an under-served but big potential market, and to its profit, Tiny Timbers looks to be part of the solution.

5. According to documents filed with the county this week, the construction loan for 607 South Aurora is $1,920,000. Tioga State Bank is the lender on record, with Charlie O’Connor of Modern Living Rentals as developer. The documents give a March-August build-out for the 4-building project; each building will host 2 three-bedroom units, and utilize modular components. These will look pretty similar to the pair that just opened on Old Elmira Road.
The two-family directly on South Aurora is designed with a full-length porch and sculpted brackets, with Hardie Plank fiber cement boards to look more aesthetically pleasing. The trio tucked away from road will use vinyl siding. Advertisements targeting Ithaca College students are already posted on MLR’s website, saying that the 3-bedroom units will rent for $2,250/month, or $750/bedroom.
6. One of those rare interesting things from the slimmed down Ithaca Journal – it appears CFCU has been doing pretty well this decade. Not only were they recently approved for an expansion into Cayuga County and Seneca County (that’s where Geneva is, guys), the Lansing-based credit union and financial services firm has added 40% to its financial holdings and 42 jobs since the start of the decade. Not too shabby at all, keep up the good work.
7. Interesting planning board meeting shaping up. Here’s the March agenda:
1. Agenda Review 6:00
2. Privilege of the Floor 6:01
3. Subdivision Review
A. Project:
Minor Subdivision 6:10
Location: 109 Dearborn Place Tax Parcel 9.-3-11
4. Site Plan Review
A. Project:
Apartments (11 Units) 6:20
Location: 107 S Albany Street
Applicant Stavros Stavropoulos
Actions: Consideration of Preliminary and Final Site Plan Approval
B. Project:
Schwartz Performing Arts Center Plaza Improvements 6:40
Location: 430 College Ave
Applicant: Ram Venkat for Cornell University
Actions: Declaration of Lead Agency .Public Hearing . Determination of Environmental Significance, Consideration of Preliminary & Final Site Plan Approval
C. Project:
Apartments ( 5 Units) 7:00
Location: 118 College Ave
Applicant: Visum Development Group
Actions: Declaration of Lead Agency
D. Project:
Finger Lakes ReUse Commercial Expansion and Supportive Apartments 7:20
Location: 214 Elmira Road
Applicant: Finger Lakes ReUse
Actions: Declaration of Lead Agency
E. Townhomes- 238 Linden Ave – Sketch Plan 7:30
This proposal was removed right before the February meeting. Same details as before: 238 Linden is a non-historic student rental house, and a John Novarr property in a CR-4 zone – 4 floors, no parking required. Further to that, 240 Linden to its north was taken down for staging space for the Breazzano Center, but as that will be finishing up this Spring, it leaves an MU-2 (six floors, no parking) parcel open for development. A townhomes plan suggest one or both of these parcels will host something not unlike the ikon.5-designed townhouses plan Novarr plans to build at 119-125 College Avenue.
F. Apartments 232- 236 Dryden Road – Sketch Plan 7:50
Another CR-4 proposal is slated for what is currently a parking lot at 232-236 Dryden Road. Given that the parking lot address is 232-238 Dryden, it seems plausible a small, remnant component is being kept. The owner is James Rider, the 57-year owner of the Hillside Inn budget hotel in Collegetown. Going out on a limb, it’s likely he is not the developer, but someone else who happens to have a purchasing option. Four floors, no parking required, on a parking lot – seems like a good opportunity for an infill project without much risk to the city’s historic fabric.

5. Zoning Appeals 8:10
#3059, Appeal of Determination, 742 Cascadilla At (Carpenter Bus. Park) – Yes, Maguire has filed the lawsuit and this is related. Carpenter is the Plan B at this point, but they want to make sure that Plan B is legal if that’s what it boils down to.
#3060, Area Variance, 322 Park Place – small addition to an existing house.
#3062, Area Variance, 104 Grandview Place – the Tiny Timber mentioned above.
#3063, Sign Variance, 505 3rd Street (Aldi) – Aldi is renovating and expanding stores across the country, a massive 1,300+ store project that’s liable to cost more than $1.5 billion over the next few years (prototype shown above). Ithaca will be one of the first to get the new layout, adding 2,700 SF to its Aldi outpost. The move is to allow expanded fresh food offerings (meat, dairy and produce), and install new energy-efficient refrigeration units. Note that the expansion is to allow a slightly larger combined store signage area than what’s legally allowed (total 272.9 SF vs 250 SF). Victor-based APD Engineering and Architecture is in charge.
6. Old/New Business 8:30
7. Reports