Fairly quiet week, but still a few things going on-
1. The Journal’s Nick Reynolds followed up on the pile-driving underway at the 210 Hancock site in Ithaca’s North Side neighborhood. Admittedly, no one wants to live next to a site while hearing and feeling the bang of the pile-driver against the piles being inserted into the ground. Thankfully, this phase of the affordable housing project should be wrapped up by the end of the month. Lecesse Construction’s subcontractor, Ferraro Piling and Shoring of rural Erie County, is inserting 10-15 piles per day between the hours of 8 AM and 4 PM, and about 170 piles will be used in the project. Not fun for the neighbors, but this too shall pass.
2. The town of Ithaca’s planning board had their close look at the Sleep Inn proposal for Elmira Road. They were not impressed. The primary complaints were that it was a one-sided design (meaning the front received significantly more cosmetic attention than the rear and sides), that it was big and that it was ugly.
The architect of the 70-room hotel, Joe Turnowchyk of HEX 9 Architects, responded with “all corporate hotels are basically ugly”, which isn’t the kind of response that will be well-received. It was followed with “[He thinks] that if they’re going to put more money into the front of the building, they shouldn’t need to address the rear”, which isn’t a good response either, because the rear faces the Black Diamond Trail.

Outsider looking in, one interpretation of the board’s commentary is that the stone and brick is fine, but they want less of a slab and more articulation – the recently-opened 64-room Best Western Plus in Cortlandville comes to mind. The massing is broken up, and architectural details and brickwork add visual interest, giving it aesthetic appeal even though the road is 40 or 45 MPH over there. The minutes note a comparison to an Arizona Sleep Inn to show what can be done with Choice Hotels brands. Anyway, the decision was tabled, with a revised design presentation planned for a September meeting.
3. New to the market this week – a duplex and five-unit mobile home park in Varna being marketed for “development potential”. The site is a one acre parcel at 10 Freese Road in Varna, touted as “perfect for townhouses or apartments”. Since the late 1980s, the “Wayside Mobile Home Park” has been the property of Ithaca attorney Ray Schlather, who was an ardent opponent of West End density and waterfront rezoning a few years back.
Zoning is Varna Hamlet Traditional District (VHTD), and it gets a little weird density-wise – per the guidelines, and being one acre, a developer could do four single-family homes, six townhouses, six condos, or three rental apartments, max 30% lot coverage. If LEED Certified, add 2 S-F homes, 2 townhouses, 1 condo, or 4 apartment units respectively. Lastly, there’s a redevelopment bonus, which honestly appears to be at the town’s discretion. If awarded, add another home, 2 townhouses, condo or 4 apartments. So in theory, max build-out for a green redevelopment is either 7 single-family houses, 10 townhouses, eight condos or eleven rental apartments on that acre of land. No idea what happens if they’re combos thereof.
Anyway, the property is being offered at $219,000, just a little over the $192,500 tax assessment.
4. So this is intriguing – the city of Ithaca Common Council will be taking a vote next Wednesday to take $150,000 from the $500,000 Capital Project fund to relocate and build a new Fire station #9, and fund two consolidation studies. One would consolidate the city hall, the Central Fire Station, Station No. 9, and Police HQ into a government campus at the site of the Central Fire Station at 310 West Green Street; the second is to study a centralized facility shared by water/sewer and streets/facilities. There’s a lot that need to be considered as part of the government campus study, which would likely involve buying neighboring properties, or building skyward. Also worth noting, the fire station parking lot is part of the Downtown West historic district. Anyway, look for a lot more discussion if the money is awarded and the study gets underway.
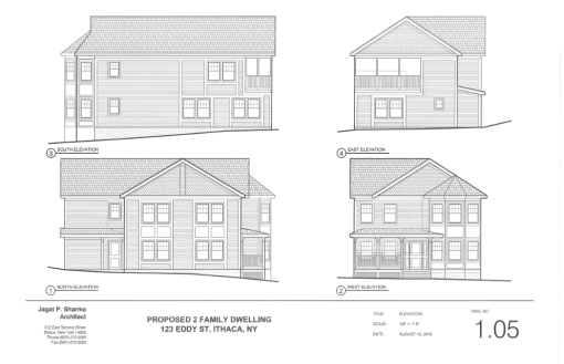
5. This week’s eye candy. Folks on Orchard Place asked for more detailed renders of the proposed two-family home at 123 Eddy Street, and here they are. Medium yellow Hardie board with white trim was the original plan. It appears that after the original drawing was submitted, the roof was realigned and one of the west-facing (front) second-floor windows was removed.
Note that this is just the planning board lot subdivision approval – although a single two-family home is typically too small to trigger planning board’s site plan review qualifications, the design still has to be approved by the ILPC and the Board of Zoning Appeals.
6. Case in point – If you live in Fall Creek, you might notice a new two-family house in the coming months. The Stavropoulos family, owners of the State Street Diner, just purchased the house for sale at 1001 North Aurora Street (above asking price, which is, for better or worse, quite common in Fall Creek) and plans to replace it with a duplex. Tompkins Trust gave them a $400,000 construction loan on the 18th. It’s a little different from the Stavropoulos’ typical M.O., which is to buy an existing house and do major renovations, as they did at 318-320 Pleasant Street and 514 Linn Street. This one looks like it will be a completely new build. No BZA, ILPC or Planning Board approval is required here, just staff level approval from the city.
7. Somewhat interesting Planning Board meeting next Tuesday. Here’s what in the bullpen:
1. Agenda Review 6:00
2. Privilege of the Floor 6:01
3. Subdivision Review 6:20
A. 123 & 125 Eddy St. (shown above)
Applicant: Nick Lambrou
Actions: Declaration of Lead Agency PUBLIC HEARING Determination of Environmental Significance Recommendation to BZA
4. Site Plan Review 6:40
A. Project: Mixed-Use Building (Harold’s Square)
Location: 123-139 E. State St. (The Commons)
Applicant: David Lubin for L Enterprises, LLC
Actions: Consideration of Project Changes
So I wrote about these changes for the Voice. The Planning Board resolution calls for modifications to the new design. The board mandates glass block for the elevator shaft on the north and lower west facades, restoration of the terra cotta cap and vertical bands on the Commons-facing facade, and restoring a deleted window from the East facade above the Sage Building. Could really used some updated renders right about now.
B. Project: Mixed-Use Building — Collegetown Crossing 6:55
Location: 307 College Ave.
Applicant: Scott Whitham for
Actions: Consideration of Project Changes (Landscape)
Project Description: Some slight tweaks here to the pedestrian walkway, mostly changes “simplifying and altering materials for the landscape”. The curvy benches are now straight, and the trees were eliminated in favor of shrubs because of concerns of branches extending onto the fire station’s property.
C. Project: Apartment Building 7:05
Location: 201 College Ave.
Applicant: Noah Demarest, STREAM Collaborative, for Visum Development Group
Actions: Consideration of Amended Negative Declaration of Environmental Significance, Request for Zoning Interpretation & Appeal Consideration of Final Site Plan Approval
Dunno what to say about this one at this point, since this is unfamiliar territory for everyone involved. We’ll see what happens.
D. SKETCH PLAN: 607 S. Aurora St. 7:35
The new project of the month is for 607 South Aurora Street on South Hill. It’s a single-family home on a 0.7 acre lot owned by Lou Cassaniti, the hot dog vendor on the Commons, but rumor mill says the applicant is Charlie O’Connor of Modern Living Rentals. Zoning is R-2a, which is detached single-family and duplex. Semi-educated guess, given lot size, zoning and rumored developer, the plans are small-scale infill, maybe subdividing the existing lot to build a duplex or two.
4. Zoning Appeals 7:50
5. Old/New Business 7:55
A. Chain Works District Redevelopment Project DGEIS: Special Planning Board Meeting, August 30, 2016, 6:00 p.m. to Review Comments/Responses
B. Maguire/Carpenter Business Park Temp. Mandatory Planned Unit Development (PUD): Public Information Session, Wednesday, August 31, 2016, 6:00 p.m., Common Council Chambers

























