Modular projects tend to move quickly. Such is the case over at 804 East State Street. The modular units have been assembled and fitted – since the interiors comes partially finished and the windows and doors come already fitted, the builder/assembler saves on not only time, but labor costs. For further reading, Ithaca Builds provides a great discussion of how modular units are assembled, including a tour of modular manufacturer Simplex Homes’ factory here.
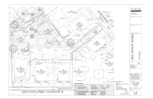
Perhaps the big surprise during this visit is that there are three duplexes underway – a third duplex is being built at 810 East State Street, which previously held a mid-century 3-bedroom bungalow. The three existing duplexes on the parcel are being spruced up as well, with the addition of small porches at their front entries. Each duplex houses 2 3-bedroom units, about 1150 SF per unit.
It appears that some exterior siding/trimming and interior finishing remains to be completed, and then landscaping once construction wraps up. Although the duplexes themselves are rather bland (some residents in the East Hill Historic District can see the site from their windows, and were opposed to construction), the developer met with residents and oriented the new units to minimize visual impact on Orchard Place, with heavy landscaping to better conceal the State Street properties. The neighbors also pushed for stick-built houses, but the owner/developer ruled it out due to costs.
A building loan agreement filed November 10th states that Tompkins Trust Company is lending the Nestopoulos family (operating under the name “Demosjohnny LLC”) $560,000 for the project. The units should be ready for their first renters by mid-January.
Schickel Architecture is the architect, and Costas Nestopoulos is the general contractor.











Yes, these duplexes are awfully bland, and look downright cheap compared to the nice historic buildings around them, but trying to insist on “stick-built” construction won’t fix that. Stick-built houses can still be bland (see: the windowless garage at 203 Pearl St), and modular units can be charmingly detailed if the developer actually cares about appearances – just look at the Belle Sherman Cottages. I wish the solution had been to actually make the duplexes look nicer, instead of just hiding their ugliness behind landscaping.
[…] Revisions to the internal sidewalk plans at 804 East State Street to allow stripped asphalt vs. concrete. B. Tweaks to the signage for the downtown Marriott […]