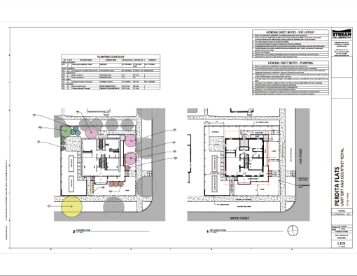
Perdita Flats Construction Update, 1/2020 » Perdita_siteplan


Actions

Leave a comment