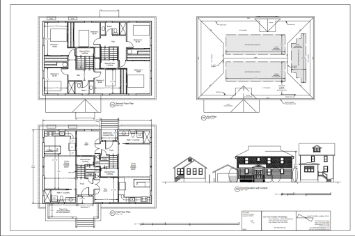
815-17 North Aurora Street Construction Update, 7/2019 » 815_n_aurora_v3_2


Actions

Leave a comment