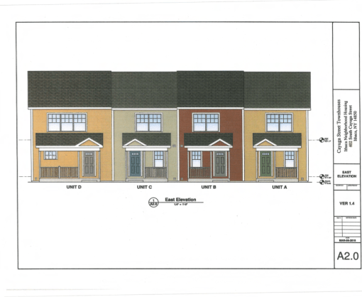
News Tidbits 7/4/19 » 402_south_cayuga_v05


Actions

Leave a comment