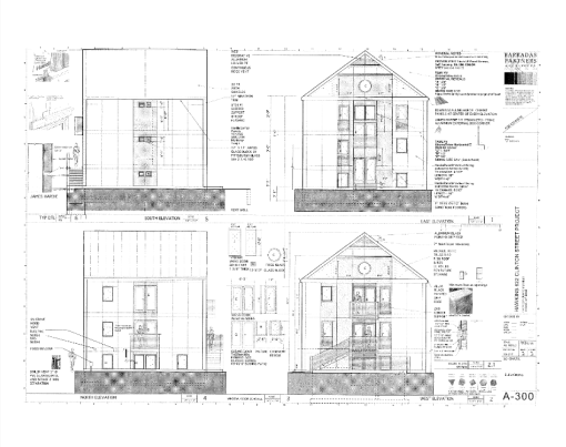
News Tidbits 3/10/19 » 622_w_clinton_v2


Actions

Leave a comment