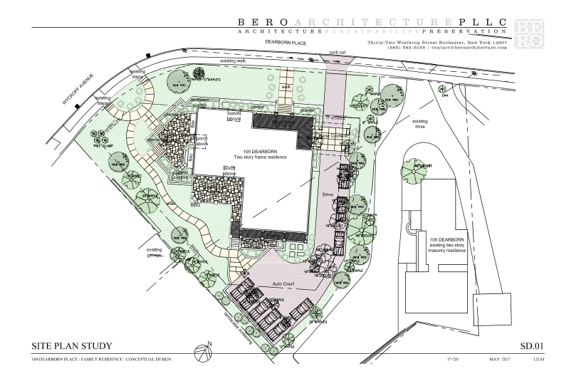
News Tidbits 7/21/18 » 105_dearborn_2


Actions

Leave a comment