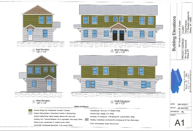
News Tidbits 11/11/17: It’s Back » 601_s_aurora_1-620×420


Actions

Leave a comment