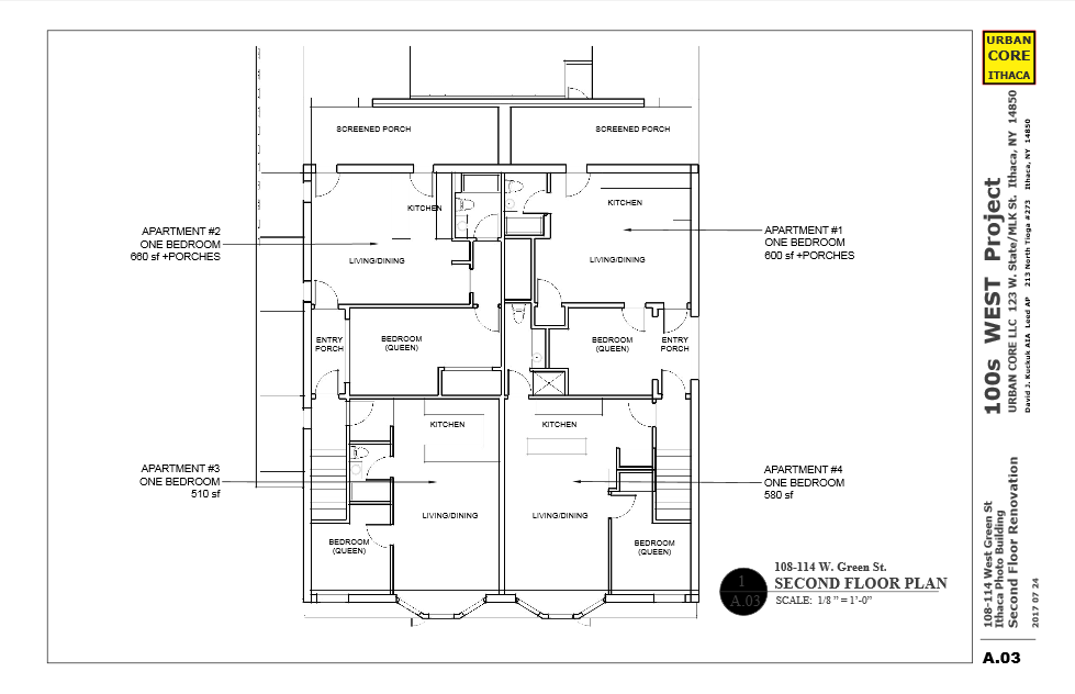
Press Bay Court (108-114 West Green Street) Construction Update, 10/2017 » pressbay_110wgreen_2nd_floor


Actions

Leave a comment