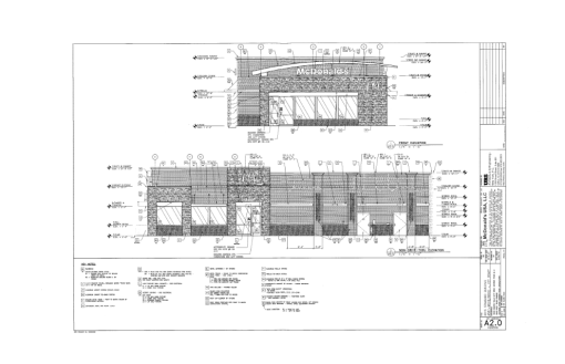
McDonald’s Rebuild Construction Update 9/2017 » mcdonalds_2


Actions

Leave a comment