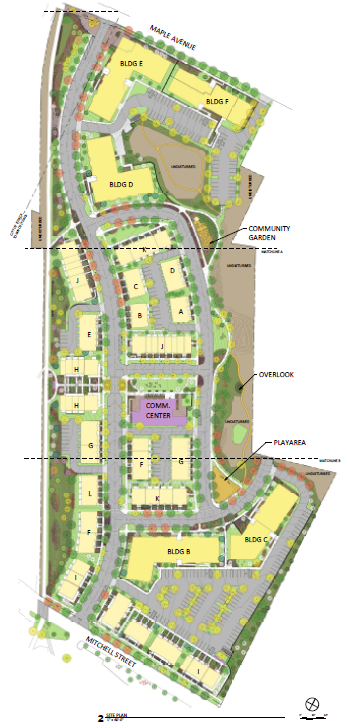
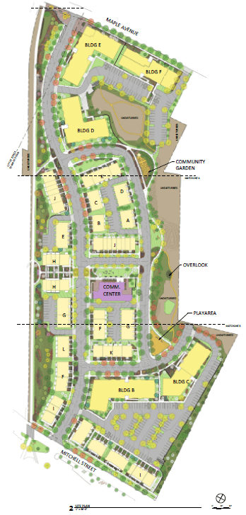
The Maplewood Redevelopment, Part II: Site Plan and Layout » maplewood_pretty


Actions

Leave a comment