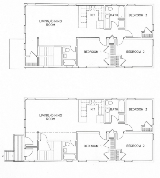
607 South Aurora Street Construction Update, 5/2017 » 607_south_aurora_final_2


Actions

Leave a comment