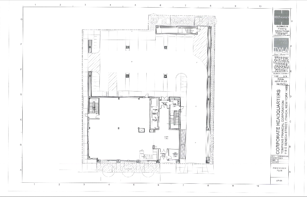
Tompkins Financial Corporation HQ Construction Update, 12/2016 » tfc_hq_first_floor_plan


Actions

Leave a comment