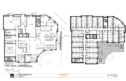
Comparing and Contrasting the Canopy Hotel Designs » canopy_comparo_floorplans_new


Actions

Leave a comment